Erillistalo
Vapautumassa kaunis erillistalo rauhalliselta ja luonnonläheiseltä paikalta Leinolasta, peltomaisemilla. Tähän vuonna 2005 valmistuneeseen kotiin kuuluu peräti kaksi autopaikkaa.
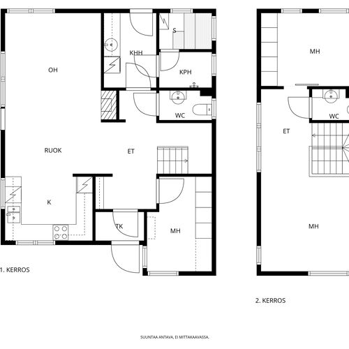
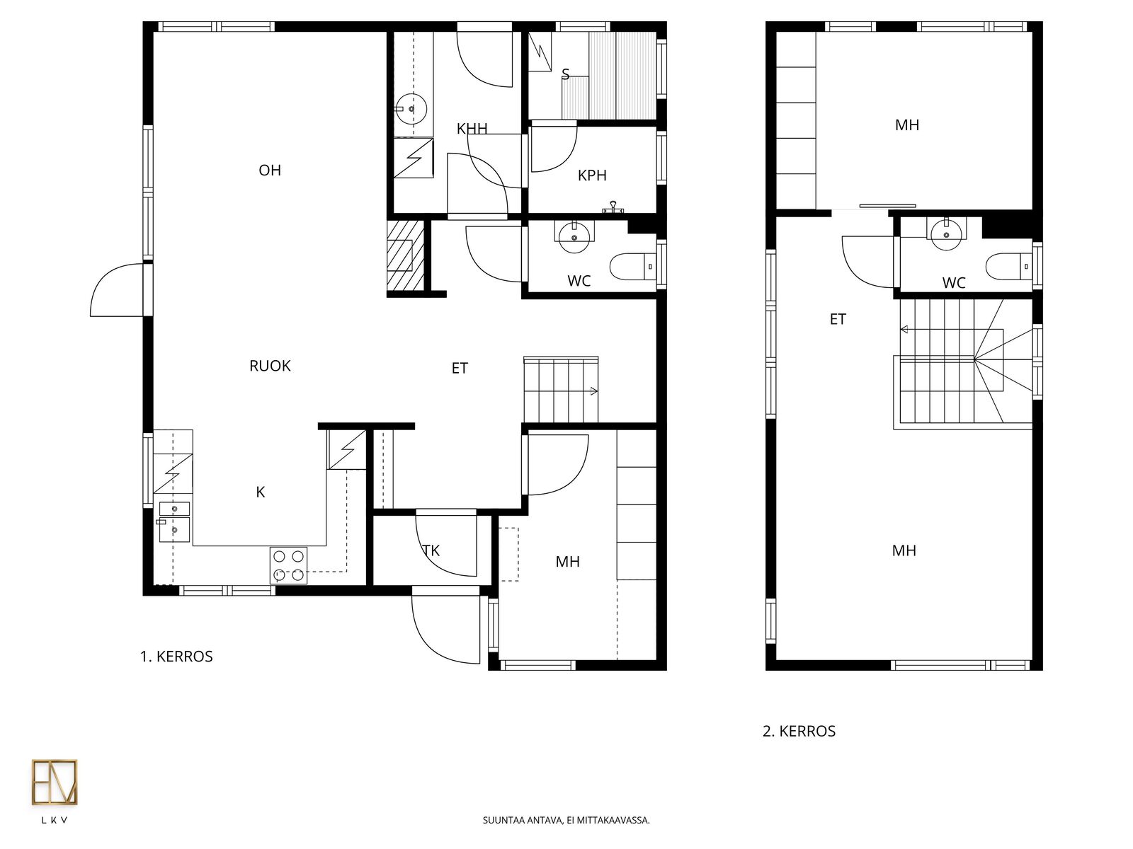
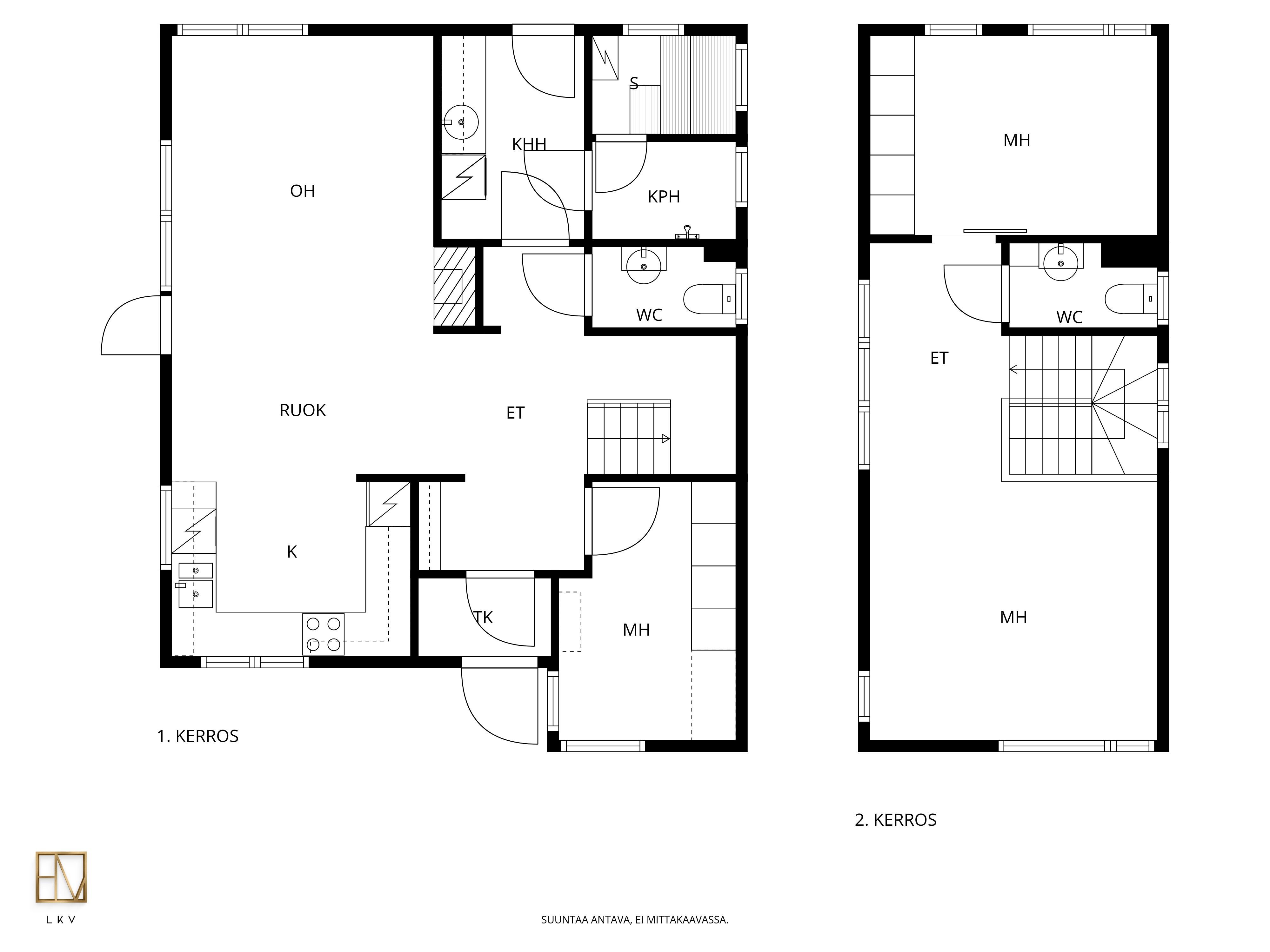
Alakerrassa sijaitsee tilava avokeittiö, joka yhdistyy avaraan olohuoneeseen. Tässä yhtenäisessä tilassa on korotettu huonekorkeus (280 cm). Olohuoneen kruunaa tyylikäs italialainen Piazzetta-kiertoilmatakka huippuimurilla. Olohuoneesta on käynti myös suojaisalle terassi- ja piha-alueella, joka rajautuu peltoalueeseen. Alakerrasta löytyy lisäksi WC, kodinhoito- ja pesutilat, joista myös suoraan uloskäynti suojaisalle takapihalle. Myös yksi asunnon makuuhuoneista on alakerrassa.
Yläkerrassa sijaitsee kaksi mukavan kokoista makuuhuonetta ja WC. Isomman makuuhuoneen seinä on avattu aulatilaan niin, että valo virtaa yläkertaan kaikista neljästä ilmansuunnasta.
Etelän- ja lännensuuntaisella takapihalla löytyvät isot lehtikuusiterassit, koristekivialueet, pieni nurmialue, istutukset ja koristeallas. Kyseessä on yhtiön reunimmainen talo, jonka terassilla voi nauttia pellon yli laskevan ilta-auringon säteistä viimeiseen asti.
Säilytystilaa on riittävästi; oman ulkovaraston lisäksi asuntoon kuuluu yhtiön tiloissa oleva välinevarasto, jossa tilat polkupyörille, auton renkaille yms. kausitavaroille. Takapihalta löytyy puutarhatarvikkeiden säilytystä varten pieni varastokoppi. Pihassa on autopaikat kahdelle autolle, toinen näistä autokatos, jossa sähköauton latausasema.
Asunto Oy Leinolan Lemmikki on 2005 valmistunut 19 asuntoa käsittävä yhtiö. Lämmitysmuotona on kaukolämpö. Taloyhtiön keskellä on suojainen leikkipiha perheen pienimmille hiekkalaatikkoineen ja leikkimökkeineen. Yhtiön sijainti on rauhallinen mutta Koilliskeskuksen kattavat palvelut ovat kuitenkin lähellä. Mahtavat ulkoilu- ja hiihtoreitit Mannerheiminkalliolta aina Niihamaan ja Kauppiin asti alkavat muutaman sadan metrin päästä.
Kohdetta myy

33100 Tamperejesse.niittymaki@herrainmaki.fi+358 40 678 7516
Esittely
Perustiedot
Kossinkatu 3
33580 Tampere
Muihin tiloihin on laskettu varaston pinta-ala.
Hinta ja kustannukset
Laskettu velattomasta myyntihinnasta.
Hoitovastike 482,40 € / kk
Rahoitusvastike 63,00 € / kk
Lisätiedot
Sähkökiuas
Asunnon tilat ja materiaalit
Lattiamateriaali: koivuparketti
Tasot: laminaatti
Seinät maalatut
Laadukas kiertoilmatakka huippuimurilla
Seinämateriaali: Maalatut seinät, yläkerran makuuhuoneissa osalla seinistä tapetti
Makuuhuoneiden määrä: 3
Seinämateriaali: Laatta
Suihku + lattialämmitys
Alakerran WC:ssä led-valaistus katossa ja koristeseinä istuimen takana
Seinät maalattu
WC-tilojen määrä: 2
Katon pintamateriaali: Tiili
Taloyhtiö
2013 Jätevesipumpun uusinta
2014 Lattialämmitystermostaattien uusinta asunnoissa A, D, E, F, J, K, N, T, U ja V (yht 14 termostaattia ja yksi kytkin)
2014 IV-kanavien nuohous
2014 Leikkialueen tarkastus ja huolto
2014 Energiatodistukset
2015 Asunto L iv-koneen puhaltimen uusinta
2015 Talotekniikka Oy:n konsulttipalveluja käytetty 10-vastuureklamoinnin tukena
2016 Käyttövesipumpun uusinta
2017 Lämpöjohtopumpun uusinta
2017 Ulko-ovien lukkohuollot
2017-2018 Julkisivujen huoltomaalaus
2018 Roska-astioiden lukitusten uusinta
2018 Ojan perkuu
2019 Kattotiilien uusinta, syöksyputkien korjausta
2019 VSS-tarkatus
2020 Katon korjaus (kattotiilien uusinta ja katon pinnoitus)
2020 IV-järjestelmien korjaus
2021: Yläpohjien lisälämmöneristäminen
2022 Autokatosten kattojen pesu ja sammalkäsittely
2024 Otsalautojen uusinta, Jätevesipumpun uusinta, Tippapellit 31 kpl asennettu takaoville ja
varaston oville, Ulkoseinien paikkamaalaus
huoltokorjaukset/uusinta
Katariina Kivipensas
0102281952
Lentolan Kiinteistöhuolto Oy
7 520,81 € / v
Muut lisätiedot
autopaikka ja yksi avopaikka. Katospaikassa on sähköauton latausasema.