Omakotitalo
Vapautumassa upea omakotitalo rauhalliselta ja arvostetulta asuinalueelta.
Alunperin 1936 valmistunut omakotitalo on kokenut viime vuosien aikana kattavan muodonmuutoksen. Koko talo on remontoitu tyylikkäästi ja laadukkaasti, yksityiskohtiin panostaen. Lopputulos on harmoninen yhdistelmä vanhan talon tunnelmaa ja modernia asumismukavuutta.
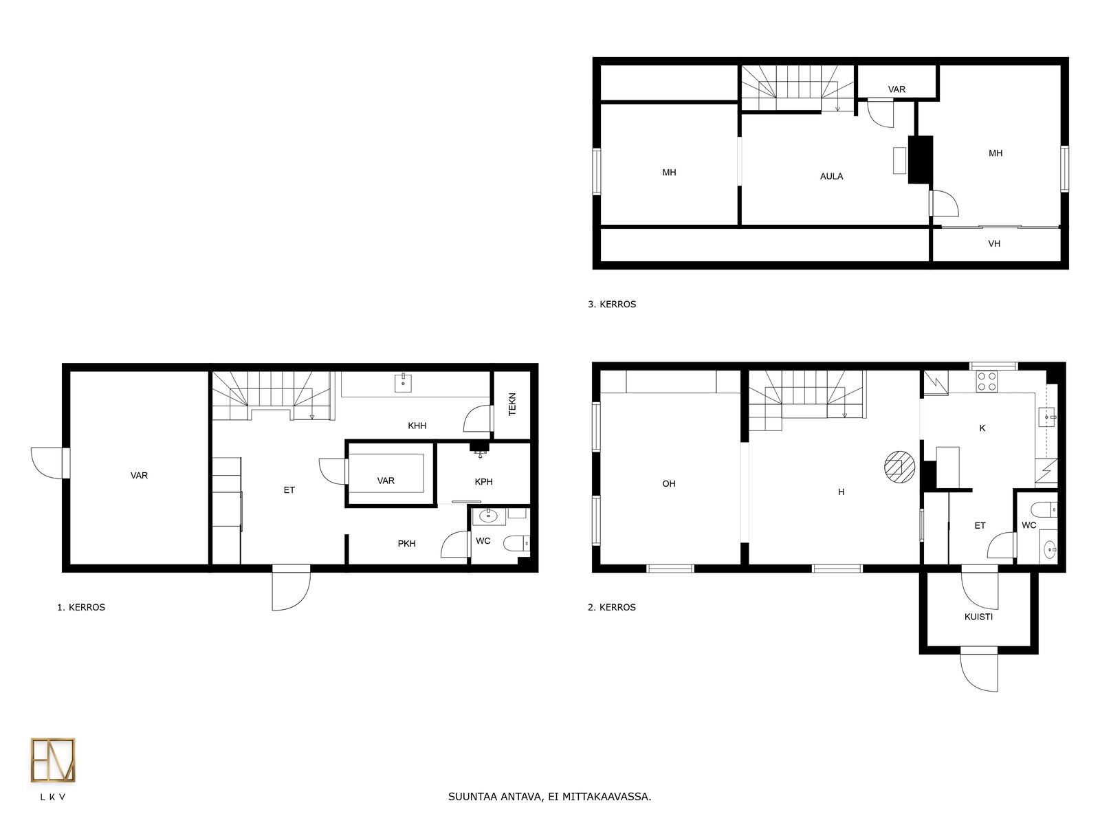
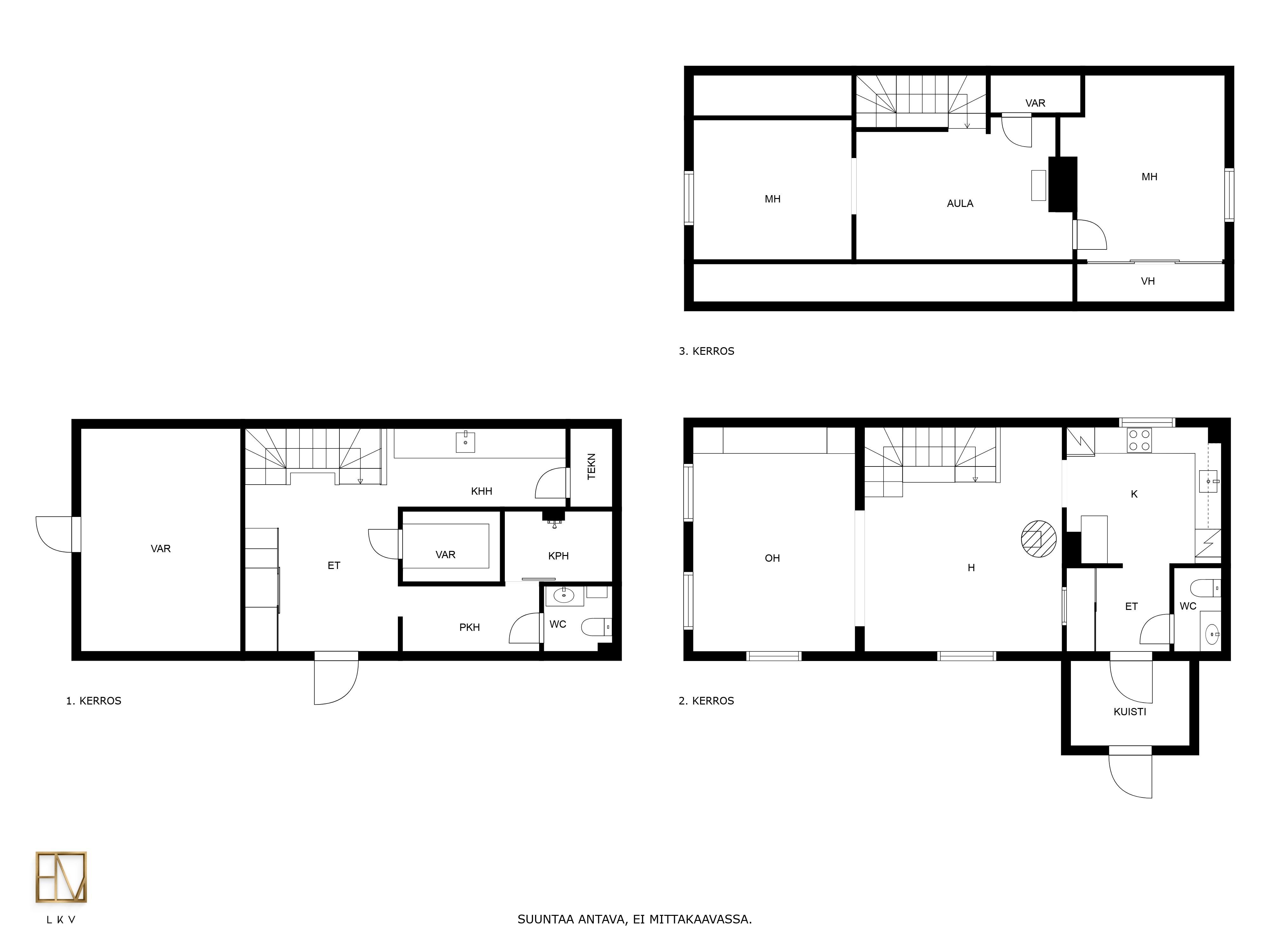
Keskikerroksessa odottaa laadukas uusittu keittiö, joka sulautuu saumattomasti avonaiseen olohuone- ja ruokailutilaan. Tilaa rytmittää ja tunnelmaa luo näyttävä musta pönttöuuni. Kellarista löydät nykyaikaiset pesutilat, kodinhoitohuoneen sekä runsaasti varastotilaa. Yläkerrassa on kaksi viihtyisää makuuhuonetta, joista toinen soveltuu hyvin myös vaikkapa työhuoneeksi.
Pihapiirissä on oma puulämmitteinen pihasauna, joka tarjoaa tunnelmallisia löylyhetkiä. 720 m² tontti on oma ja se on suojaisa sekä vehreä. Lämmitysmuotona toimii sähkö, jota tukevat ilmalämpöpumppu ja tulisijat. Käyttökustannukset ovat erittäin matalat. Pihalla on autokatos ja tilaa useammalle autolle.
Koti soveltuu erinomaisesti monenlaisiin elämäntilanteisiin, sillä koulut, kaupat ja monet harrastuspaikat sijaitsevat kävelyetäisyydellä. Mahdollisuudet ulkoiluun ja luonnosta nauttimiseen ympäri vuoden alkavat aivan kotiovelta.

Kohdetta myy

33100 Tamperesami.nyman@herrainmaki.fi040 358 8839
Esittely
Perustiedot
Sutikanmutka 15
33710 Tampere
Muihin tiloihin lasketaan sauna ja pukuhuone, joiden pinta-ala on laskettu asemakaava kuvan ilmoitettujen mittojen mukaan 18,20 m², päärakennuksen kellarin varastotilat 15,30 m² ja autokatoksen varastotila noin 7 m².
Hinta ja kustannukset
Laskettu velattomasta myyntihinnasta.
Lisätiedot
PuukiuasErillinen pihasauna rakennus, liuskekivi lattia. Seinät: puupaneeli. Kiukaan tyyppi: puukiuas.
2014:
Roskakatos
Lukitusten uusinta
Varasto-oven uusinta
Varaston hyllyköt
2015:
Naapuriaidan teko yhteistyössä naapurin kanssa saunan takana
Puukatos
Ilmalämpöpumpun katos
Salaoja -ja sadevesijärjestelmän uusinta
Tontille johtavan tien muutos
Pohjaviemärin uusinta
Talon perustusten vahvistus, sokkelin lisäeristys ja rappaus
Saunatuvan sisäpuolen kokonaisvaltainen korjaus:
Eristys, laudoitus, lattialaminaatit, lattialämmitys, uusi ikkuna, kaminan asennus
2016:
Uusi autokatos/varasto
Talon uusi ulko-ovi
Pihasaunan sisäpuolen korjaus
Seinien käsittelyt, uudet lauteet, uusi alakatto, lattian liuskekivet, muuriseinän laatoitus, valaistus, kiuas
Vesikaton lumiesteet ja tikkaat
Tuija-pensaat
Pihakiveykset + muuri
Ulkovalaisimien uusinta ja pallovalojen asennus 2017:
Katettu pihaterassi ja kalusteet
Auringonottopaikan laatat sekä pyöreät askelkivet nurmikolle
2018:
Keinuterassi
2019:
Kellarin lattian kapillaarikatkot, radon-putkitukset, eristys, teräsbetonirakenteet, lattialämmitykset, vedeneristykset, laatoitukset, vesiputket, viemärit, suihku Kellarin kahiseinät, laatoitukset, puupaneelit, uusi katto
Kellarin uusi ulko-ovi
Paljuterassin teko + palju
Heinäseiväsaita
2krs makuuhuoneen seinien eristeiden lisäys, uudet kattopaneelit ja seinät, maalaukset
2krs makuuhuoneen uusi ikkuna
Savupiipun pellitys
2020:
Kellarin kalusteiden, WC, kodinhoitohuoneen asennus
Kuivauskaapin ja lämminvesivaraajan asennus
Ilmanvaihdon asennus
2krs makuuhuoneen vaatekomero ja liukuovet
Uusien portaiden asennus
Porrasaukon seinän laudoitus
2krs vinyylikorkkilattian asennus
2021:
1krs keittiön, eteisen ja WC:n lattiarakenteiden uusinta, lattialämmityksen asennus, vedeneristys/kosteussulku, laatoitus, kalusteiden asennus, kodinkoneiden uusinta, seinien osittainen uusinta, maalaus, laatoitus, valaistuksen uusinta
Keittiön ikkunan uusinta
1krs olohuoneen vinyylikorkkilattian asennus, ulkoseinien korjaus ja maalaus, pönttöuunin pinnan maalaus
2krs muurin maalaus
Kaupungin maakaapelin asennus maahan
2022:
Kaupungin maakaapelin kytkennät ja kotelon asennus
Ilmalämpöpumpun uusinta Innova
Olohuoneen laajennus, pintojen uusinta, päädyn ikkunoiden asennus, tv- kalusteiden asennus
Vanha kylpyhuone purettu
2016-2022: pääosin kaikki sähköistys, kaapeloinnit, valaisimet uusittu
2023:
Sähkökeskuksen uusinta
Lämmönjakotapa: sähköinen lattialämmitys, uuni/takka, ilmalämpöpumppu, muu, Puu, sähkö, Ilmalämpöpumppu, sähköinen lattialämmitys, uuni/takka, ilmalämpöpumppu,
Painovoimainen: kanavapuhaltimella toimiva, säädettävä poisto, kosteissa tiloissa, wc:issä ja kellarin varastossa.
Asunnon tilat ja materiaalit
Seinien pintamateriaali: maalattu, osalaatoitus
Lattian pintamateriaali: laatta
Liesi: induktio
Seinien pintamateriaali: kaakeli
Lattian pintamateriaali: laatta
2 wc alakerta: kylpyhuonekaapisto, peilikaappi, wc-istuin, lattiakaivo, bidee- suihku. Varustus: lattialämmitys. Lattia: laatta. Seinät: laatta
Varusteet: lämminvesivaraaja, ilmalämpöpumppu
Katon pintamateriaali: Pelti
Asunnon tontti
Tampereen kaupunki
Saunarakennus on rakennettu vuonna 1945, uusittu sisäpuoli, jossa pukuhuone ja sauna. Rakennuksen yhteydessä katettu terassi ja puuvaja.
Autokatos on rakennettu vuonna 2017, katoksessa erillinen varasto, jossa on lattialämmityskaapelit.















































