Omakotitalo
Tunnelmallinen omakotitalo järvimaisemilla Ikaalisten keskustassa!
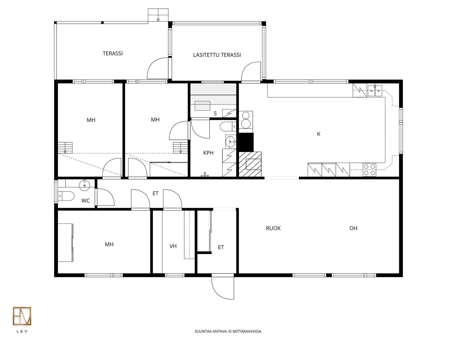
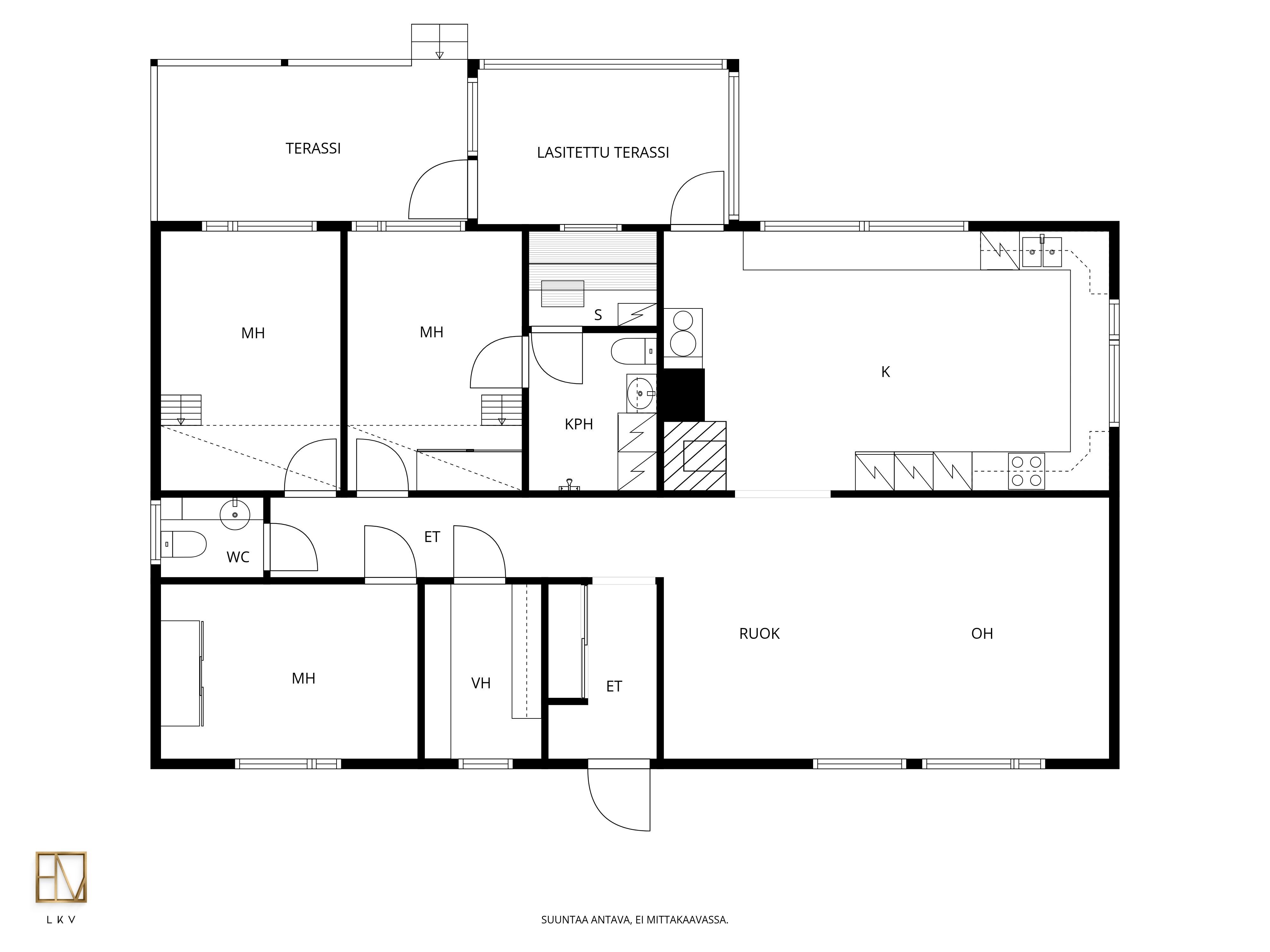
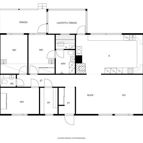
Tervetuloa tutustumaan tähän kodikkaaseen omakotitaloon upealla paikalla Ikaalisten Läykkälänlahdella – vain kivenheiton päässä Kyrösjärven rannasta! Tämä yhdessä tasossa oleva, kolmen makuuhuoneen koti tarjoaa toimivat tilat niin perheelle kuin pariskunnallekin.
Avara olohuone ja ruokailutila yhdistyvät saumattomasti suureen keittiöön, jossa on sekä leivinuuni että perinteinen puuhella – täydellinen yhdistelmä tunnelmaa ja käytännöllisyyttä. Olohuoneessa korkea viistokatto tuo tilaan ilmavuutta, ja ilmalämpöpumppu huolehtii asumismukavuudesta vuoden ympäri. Kaksi makuuhuoneista on varustettu käytännöllisillä makuuparvilla, jotka tarjoavat lisätilaa vaikkapa lasten leikkeihin, säilytykseen tai vierasmajoitukseen. Eteisessä on lisäksi reilun kokoinen vaatehuone, joka tuo arkeen kaivattua säilytystilaa ja tämän lisäksi kiinteistöllä on erillinen 20 m² ulkovarasto.
Talon kahdella viihtyisällä terassilla voit nauttia rauhasta, vehreästä kulmatontista ja näkymistä Kyrösjärvelle. Piha-alue tarjoaa tilaa niin lasten leikeille kuin puutarhaharrastuksille.
Sijainti on mitä mainioin: rauhallinen ja perheystävällinen asuinalue, jossa palvelut löytyvät läheltä – luontoa ja järveä unohtamatta.
Tässä koti, jossa yhdistyvät toimiva arki, kauniit maisemat ja lämmin tunnelma. Tervetuloa ihastumaan paikan päälle!
Kohteen myynti ja lisätiedot:
Eeva Puntala, Herrainmäki LKV
0504966170
eeva@herrainmaki.fi 
Kohdetta myy

33100 Tamperetoimisto@herrainmaki.fi040 678 7516
Esittely
Perustiedot
Teljonkatu 10
39500 Ikaalinen
Hinta ja kustannukset
Laskettu velattomasta myyntihinnasta.
Lisätiedot
Sähkökiuas
Lämmönjakotapa: sähköinen lattialämmitys, uuni/takka, ilmalämpöpumppu
Asunnon tilat ja materiaalit
Seinien pintamateriaali: maalattu
Lattian pintamateriaali: lauta
Keittiön tasot: laminaatti
Liesi: muu, induktio, puuliesi
Lattian pintamateriaali: lauta
Lattian pintamateriaali: vinyylikorkki
Makuuhuoneiden määrä: 3
Seinien pintamateriaali: kaakeli
Lattian pintamateriaali: laatta
Lattian pintamateriaali: laatta
WC-tilojen määrä: 2
Varusteet: sälekaihtimet/rullaverhot, verhotangot, kiinteät valaisimet, lämminvesivaraaja, ilmalämpöpumppu, parveke-/terassilasitus, istutukset, pihavarusteet
Katon pintamateriaali: Peltikate
Katon kunto: Katto uusittu 2024, Kattokeskus
Asunnon tontti
Ikaalisten kaupunki, kaavoitus p. 044 730 6232








































