Kerrostalo
Tilava kaksio Kalevasta – sijainti parhaiden palveluiden ja liikenneyhteyksien äärellä
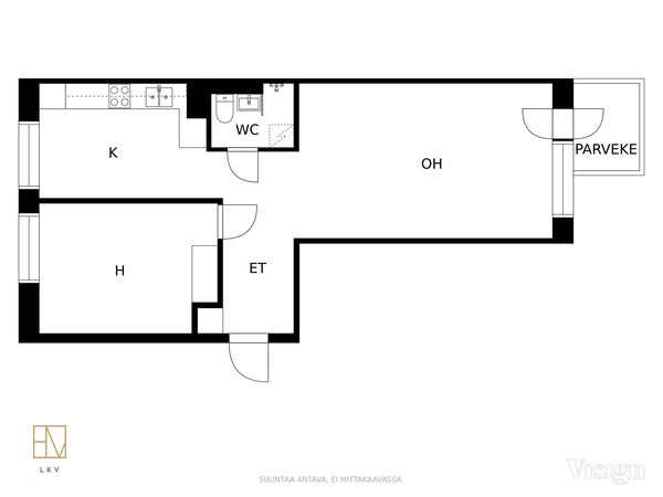
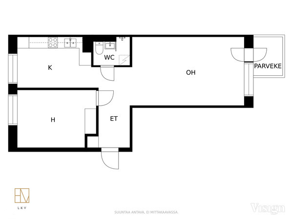
Tämä siistikuntoinen 58 m²:n kaksio sijaitsee 4/6 kerroksessa ja tarjoaa tilavat huoneet, jotka sopivat mainiosti niin pariskunnalle kuin yksinasuvalle. Suureen olohuoneeseen mahtuu helposti myös etätyöpiste, ja asunnon selkeä pohjaratkaisu tekee arjesta toimivaa.
Kodin sijainti Kalevassa on erinomainen. Viihtyisät puistoalueet ympäröivät taloa, ja raitiotie- sekä bussipysäkit löytyvät aivan vierestä, joten liikkuminen on vaivatonta. Keskustan palvelut, ravintolat, kulttuurielämykset ja Nokia Arena ovat kävely- tai pyöräilymatkan päässä. Liikunnan ja luonnon ystäville Kaupin urheilupuisto tarjoaa ympäri vuoden monipuoliset harrastusmahdollisuudet, ja Tammelan uusi jalkapallostadion sekä liikekeskus sijaitsevat lähes naapurissa.
As Oy Hipposkulma on vuonna 1958 valmistunut suuri ja hyvin hoidettu taloyhtiö, jossa on 179 asuinhuoneistoa. Lisäksi yhtiön hallinnassa on kolme asuntoa sekä 14 liike- ja toimistotilaa, jotka tuottavat merkittävää vuokratuottoa vuosittain. Lämmitysmuotona on kaukolämpö miellyttävällä vesikiertoisella lattialämmityksellä. Tontin vuokrasopimus on uusittu ja voimassa aina vuoteen 2065 asti.
Kalevan kattavat palvelut löytyvät kävelyetäisyydeltä. Tamk, yliopisto ja moni muu oppilaitos kävelyetäisyydellä. Tämä koti tarjoaa täydellisen yhdistelmän arjen mukavuutta, sujuvia yhteyksiä ja kaupunkielämän parhaita puolia.

Kohdetta myy

33100 Tamperesami.nyman@herrainmaki.fi040 358 8839
Esittely
Perustiedot
Teiskontie 22
33540 Tampere
Hinta ja kustannukset
Laskettu velattomasta myyntihinnasta.
Hoitovastike 246,40 € / kk
Lisätiedot
Tehty remontin yhteydessä v. 2021
Asunnon tilat ja materiaalit
Seinien pintamateriaali: maalattu
Lattian pintamateriaali: laminaatti
Liesi: sähköliesi
Seinien pintamateriaali: maalattu
Lattian pintamateriaali: laminaatti
Seinien pintamateriaali: maalattu
Lattian pintamateriaali: laminaatti
Makuuhuoneiden määrä: 1
Seinien pintamateriaali: kaakeli
Lattian pintamateriaali: laatta
Varusteet: kiinteät valaisimet
Katon pintamateriaali: Tiilikate
Taloyhtiö
DNA laajakaista 10/10M
98-99 Käyttövesiputkien ja viemäreiden uuusinta.
1999 Lukkojen uusinta.
1999/ 2000 Tiilikattojen uusinta.
2001-2002 Hissien modernisointi.
2002 Autohallin vesieristekorjaus ja perustuksen salaojitus.
2009 Julkisivu- ja ikkuna/parvekesaneeraus.
2009-2010 Tuuletusparvekkeiden korjaus.
2013 Lämmitysjärjestelmän tasapainotus.
2015 Porrashuoneiden maalaus ja talon Teiskontie 24 porrastasojen pinnotteiden uusiminen.
2017 Saunojen paneelien ja lauteiden uusiminen.
2019-2020 Lukoston uusiminen.
2020 Taloyhtiön korjaustarpeiden hankeselvitys, Lara Oy.
2022 Liiketilojen pintaremontti.
2023 Hissipuhelimien uusiminen, märkätilakartoitus kaikkiin asuntoihin.
2024 Pohjaviemärin huuhtelu ja kuvaus, ilmanvaihtokanavien nouhous ja hormitutkimus, katutason liiketilan remontti, ilmamäärien säätö.
yhtiökokouksessa huhtikuussa 2024 ja maaliskuussa 2025. Yhtiökokous on antanut hallitukselle valtuudet 50 000 euron asti tilata tarkempaa hankesuunnittelua hankkeeseen liittyen. Hankesuunnittelusta on pidetty osakasinfo 13.11.2024 jossa hankesuunnitelmaa esitelty osakkaille ja 6.3.2025 on päätetty edistää hanketta varsinaiseen
suunnitteluvaiheeseen. Suunnitelmat pyritään saamaan valmiiksi syksyyn 2025 mennessä, loppuvuodesta pidetään erillinen yhtiökokous, jossa päätetään urakkaan lähtemisestä. Arvio hankesuunnitteluvaiheessa hankkeen kokonaiskustannuksista on noin 6 200 000 euroa, mutta urakkakokonaisuudesta ei ole vielä päätetty ja kustannukset tarkentuvat suunnitteluvaiheen päätyttyä urakkakilpailutuksen jälkeen.
Hallituksen esitys varsinaiseen suunnitteluun etenemisestä on ollut seuraava:
Suunnittelutarve (hankesuunnitelman vaihtoehto V3+2,3)
• kaikki asuntojen kylpyhuonetilat suunnitellaan saneerattavaksi (pinnat ja kalusteet)
• asennetaan huoneistokohtaiset vesimittarit (etäluettavana)
• antenni ja televerkon uusiminen (Traficom 65 -asetuksen mukaan)
• käyttövesiputkistot suunnitellaan muutettavaksi nykymääräysten mukaisiksi (katon suunnasta ja vedenmittaus)
• sähköt suunnitellaan uusittavaksi koko kiinteistöön
• ilmanvaihtokoneet uusitaan ja poistoventtiilit uusitaan säädettäviin
• suunnitellaan vähintään varaukset sähköautojen lataukselle (autohalli ja varaus pihaan)
• palovaroittimet asuntoihin ja yleisiin tiloihin
Rakennuttajakonsulttina hankkeessa toimii A-Insinöörit Oy.
137 670,00 € / v













