Omakotitalo
Nyt vapautumassa UPEA omakotitalo OMALLA TONTILLA! Tarjolla on tilaa ja laatua moniin tarpeisiin!
Tervetuloa Haaronkujalle, josta löytyy tämä harvinaisen monipuolinen kokonaisuus, missä yhdistyvät laadukas asuminen, toimivuus ja oma rauha.
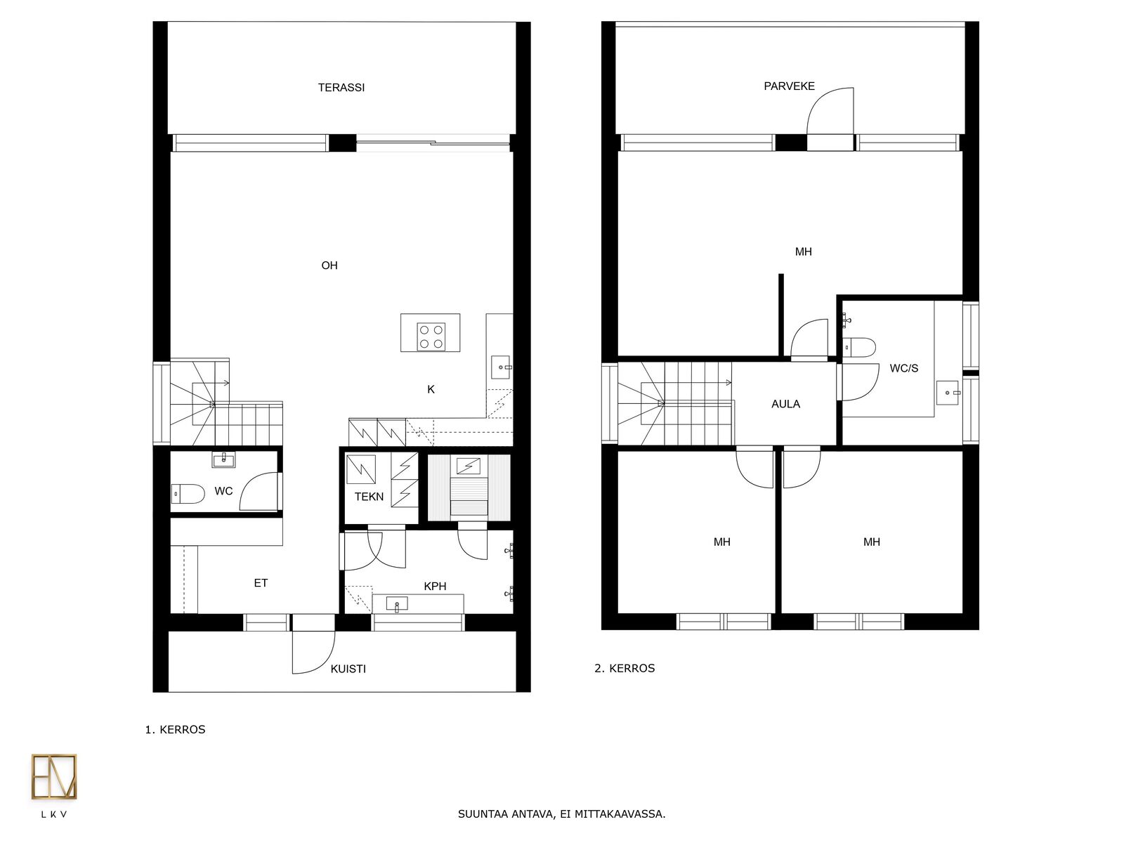
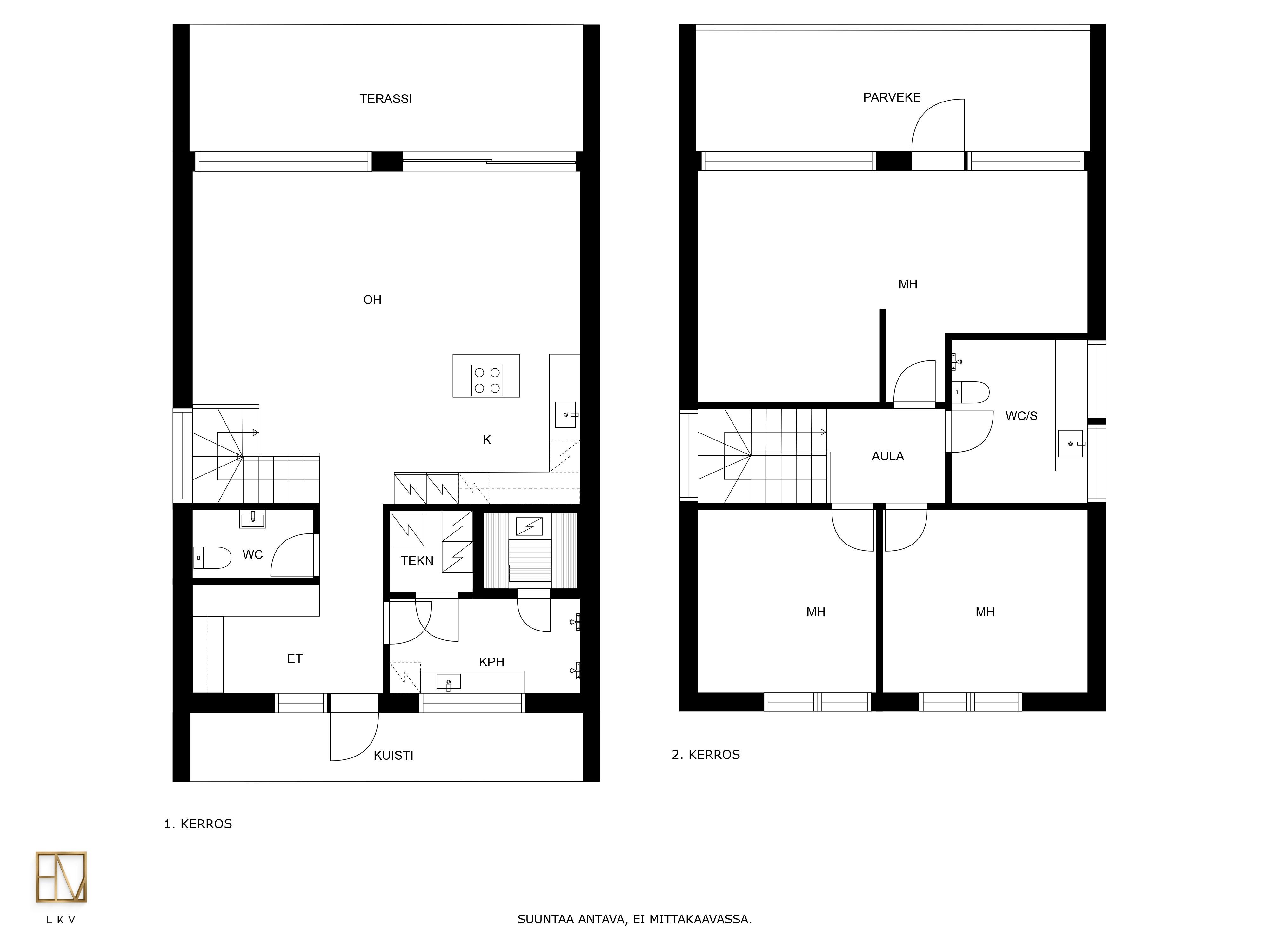
Tämä kahdessa tasossa oleva omakotitalo sijaitsee omalla helppohoitoisella tontilla, jonka kruunaa tyylikäs kesäkeittiö. Tämä on täydellinen paikka nauttia kesäpäivistä ja illanvietoista ystävien kanssa.
Erityistä tässä kohteessa on lämmin autotalli 2 autolle, jonka yhteydessä sijaitsee kompakti yksiö. Tämä onkin loistava mahdollisuus esimerkiksi etätyötilaksi, vuokraukseen tai vierasmajaksi.
Sisätilat tarjoavat avaraa ja viihtyisää asumista kahdessa kerroksessa. Selkeä pohjaratkaisu, laadukkaat materiaalit ja huolella ylläpidetyt tilat tekevät tästä kodista täydellisen valinnan niin perheelle kuin pariskunnalle.
Sijainti on rauhallinen mutta käytännöllinen. Arjen palvelut ja liikenneyhteydet löytyvät läheltä, mutta koti tarjoaa silti oman suojaisan pihapiirin.
Tässä kodissa on kaikki valmiina ja muuttamaan pääset ilman remonttihuolia. Tartu tilaisuuteen ja varaa oma esittelysi!
Lisätiedot ja esittelyt:
Marko Vähätalo
050 4666 315
marko.vahatalo@herrainmaki.fi 
Kohdetta myy

33100 Tamperetoimisto@herrainmaki.fi040 678 7516
Esittely
Perustiedot
Haaronkuja 5
33710 Tampere
kerrosala on n.134m2
kokonais-ala on n.164m2
Pinta-alojen tiedot on saatu myyjältä, eikä niitä ole tarkistusmitattu.
Hinta ja kustannukset
Laskettu velattomasta myyntihinnasta.
Lisätiedot
Sähkökiuas
Lämmönjakotapa: vesikiertoinen lattialämmitys
Asunnon tilat ja materiaalit
Pintamateriaalit: Epox lattia.
kph/wc/s laatta lattia
Lattian pintamateriaali: muu
Lattian pintamateriaali: muu
Epox lattia
Seinien pintamateriaali: maalattu
Lattian pintamateriaali: muu
Makuuhuoneiden määrä: 4
Lattian pintamateriaali: muu
Varusteet: lattialämmitys
Seinien pintamateriaali: maalattu
Lattian pintamateriaali: muu
WC-tilojen määrä: 2
Varusteet: pesukoneliitäntä
Lattian pintamateriaali: muu
Katon pintamateriaali: Peltikate
Asunnon tontti
Hallinnanjakosopimuksen mukaan myytävän kiinteistön osuus rakennusoikeudesta on 137 m².
Tampereen kaupunki











































