Rivitalo
Vapautumassa rivitalomainen neljän huoneen koti Tampereen keskustan liepeiltä, kuitenkin rauhalliselta ja suojaiselta paikalta. Tämän kodin yhteyteen voi myös vuokrata taloyhtön aidatulta sisäpihalta pistokepaikan autolle.
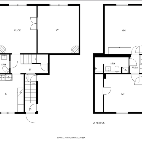
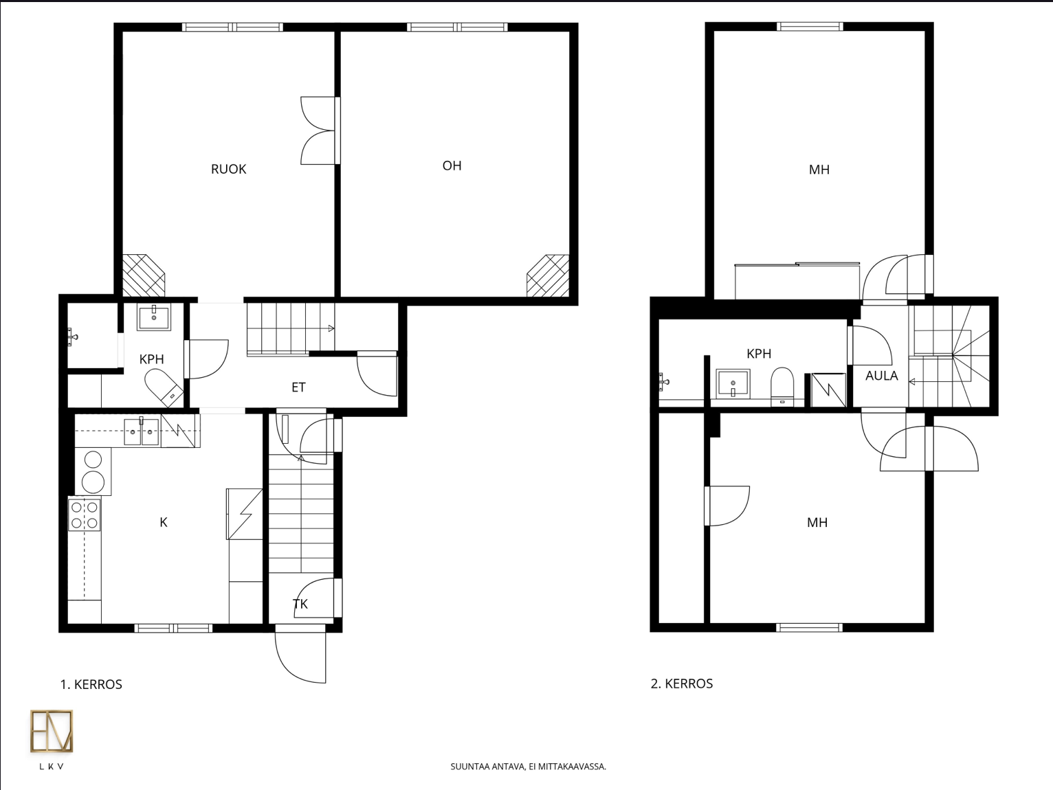
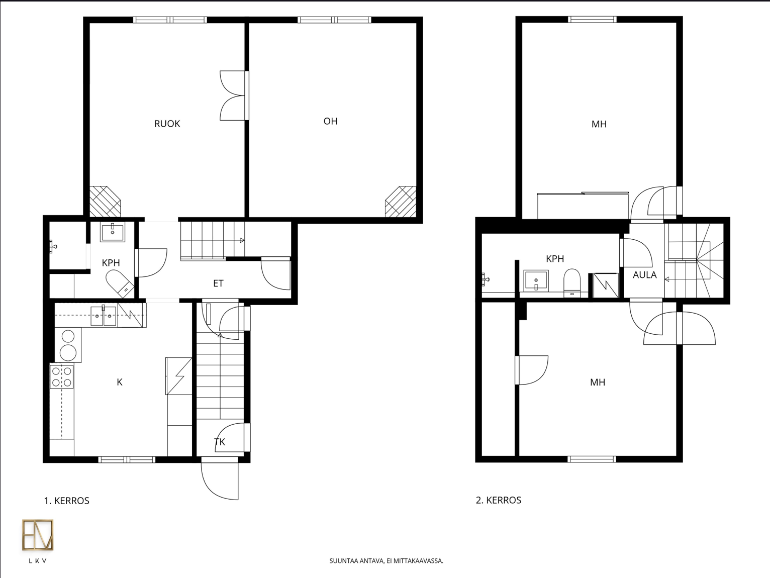
Asuntoon on jätetty aikakautensa piirteitä hyvin viehättävällä ja arvoa huokuvalla tavalla. Tilavaan keittiöön mahtuu myös ruokapöytä. Keittössä on sähkölieden lisäksi myös puuliesi. Tällä hetkellä sisääntulokerroksessa on myös ruokailuhuoneena toimiva tila sekä olohuone. Huoneet tarjoavat myös paljon muita käyttömahdollisuuksia. Molemmissa huoneissa on myös toimivat kakluunit. Sisääntulon yhteydessä on myös ensimmäinen asunnon kahdesta kylpyhuoneesta wc:llä.
Yläkerta on rakennettu vanhaan vinttiin vuonna 2012. Siellä sijaitsee kaksi tilavaa makuuhuonetta sekä asunnon toinen kylpyhuone ja wc.
Kodissa on paljon erilaisia kaapistoja tuoden kekseliäälisti lisää säilytystilaa. Taloyhtiön kellarista löytyy oma tilava irtaimistovarasto, missä on tila niin polttopuille kuin myös viineille. Taloyhtiöllä on asukkaiden käytössä oleva sauna.
Asunto-Osakeyhtiö Erkkilän-Aukee on vuonna 1926 valmistunut taloyhtiö rauhallisella paikalla Lapintien ja Satakunnankadun välissä. Keskustan ja Tampellan kattavat palvelut ovat kävelyetäisyydellä. Myös Näsijärven rantaan kävelet viidessä minuutissa.
Kohdetta myy

33100 Tamperejesse.niittymaki@herrainmaki.fi+358 40 678 7516
Esittely
Perustiedot
Pellavatehtaankatu 5
33100 Tampere
Hinta ja kustannukset
Laskettu velattomasta myyntihinnasta.
Hoitovastike 617,88 € / kk
Rahoitusvastike 203,64 € / kk
Lisätiedot
Asunnon tilat ja materiaalit
Pintamateriaalit: Alakerran asuintiloissa parkettilattiat. Ruokasalin ja keittiön parketti hiottu ja käsitelty 2021.
Yläkerrassa vuonna 2012 asennettu lautalattia.
Jääkaappipakastin, induktioliesi, astianpesukone, liesituuletin ja induktioliesi.
Alakerran kylpyhuone on remontoitu 2008. Kylpyhuoneessa seinät ja lattia laattaa. Wc-istuin, suihku, pesuallas ja pesukoneliitäntä.
Yläkerran kylpyhuone on tehty 2012. Kylpyhuoneessa seinät ja lattia laattaa. Seinä-wc, pesuallas, peilikaappi.
Katon pintamateriaali: Pelti
Taloyhtiö
Ilmanvaihto: rakennuksen ilmanvaihto on painovoimainen. Osakkaiden itse asentamien
ilmanvaihtolaitteiden korjaus ja huolto ovat osakkaan vastuulla. Osakas on vastuussa
huoneistoon jälkikäteen asennettujen laitteiden yhtiön rakenteille mahdollisesti
aiheuttamista vaurioista.
Sähköjärjestelmät: Osakkaan muutostyönä toteuttamat smart home ym. perustason ylittävät
sähköjärjestelmät ovat osakkaan kunnossapitovastuulla.
Tulisijat: Tulisijojen kunnossapitovastuu on taloyhtiöllä.
(Yhtiöjärjestyksen 17 §)
1985 – Pesutuvan muutos saunaosastoksi
1994 – Pohjaviemäri ja kellarikerroksen vesijohdot ja viemärit
1995 – Ulkomaalaus ja ikkunoiden kunnostus
2011 – Putkistokuvausraportti
2012 – Vesikaton uusiminen
2012 – Asunnon C3 laajennus ullakolle (osakkaan muutostyö)
2014 – Sadevesiviemäreiden liittäminen hulevesiviemäriverkkoon
2015 – Piharemontti, salaojituksen parantaminen, sokkelin vesieristys
2016 – Palohormien uudelleenmassaus
2016 – Saunan viemärin johtaminen pesuhuoneen alla olevan kaivon ohi, kiukaan ja ohjauskeskuksen uusinta ja panelointi
2017 – Vesikaton maalaus
2018 – Asunnon D4 laajennus ullakolle (osakkaan muutostyö)
2018 – Kellarin sähköjen uusiminen
2018 – Julkisivun ja ikkunoiden huoltomaalaus
2019 – Asunnon F6 laajennus ullakolle (osakkaan muutostyö)
2020 – Asuntojen ulkoportaiden ja kivetysten portaiden kunnostus
2021 – Jäteastioiden lisäys ja sähkökuntoarvio
2022 – Lämmitystapavertailu
2023 – Asuntojen B2 ja E5 laajennukset ullakolle (osakkaan muutostyö)
2024 – Asuntojen ovien uusinta
2024 – Käyttövesiputkiston kuntokartoitus
2025–2026 – Vanhojen vesijohtojen ja viemäreiden saneeraus (isännöitsijän mukaan vesijohtomuutokset tehty, paikottaisia viemärikorjauksia vielä saatetaan tehdä)
2026 – Saunan pukuhuoneen remontti ja pesuhuoneen seinien ja lattian vedeneristeiden ja laatoitusten uusinta
2029 – Sähköjärjestelmien vanhojen osien saneeraus
Hatanpään valtatie 26, 33100 Tampere
0207 346 110
Tampereen Ammatti-isännöitsijät Oy
Huoltoyhtiö ulkoalueet, muuten talkoilla.
26 800,00 € / v
Muut lisätiedot
Autopistokepaikat: 9
Taloyhtiö vuokraa pihapistokepaikkoja.