Paritalo
Paritalo Huikas!
Arvostetulta ja rauhalliselta Huikkaan asuinalueelta vapautuu tunnelmallinen koti omalla tontilla! Vuonna 1993 valmistuneesta paritalon puolikkaasta on pidetty hyvää huolta ja se onkin toiminut saman perheen kotina alusta alkaen. Siistikuntoisen kodin yleisilmettä on päivitetty runsaasti 2000- luvulla ja mm. keittiö, saunaosasto sekä kodinhoitotilat on uusittu. Tässä on loistava tilaisuus perheelle, joka arvostaa rauhallista omakotitalo miljöötä kattavien palveluiden läheisyydestä!
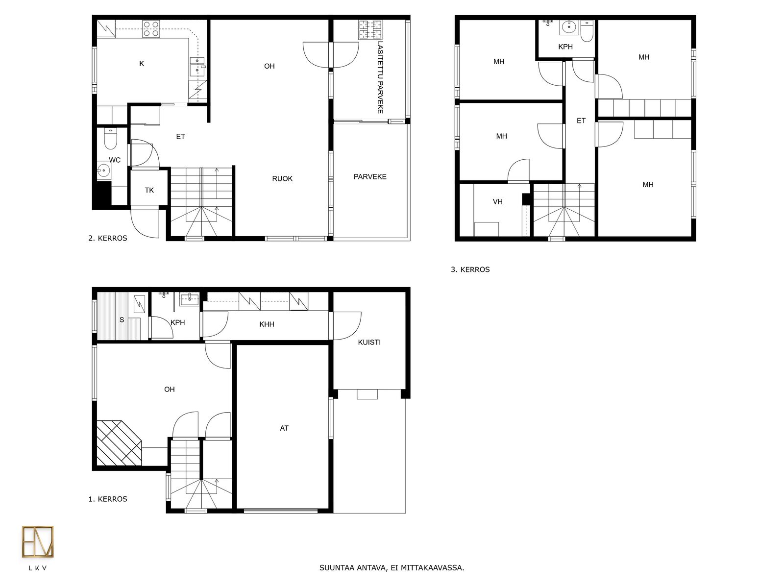
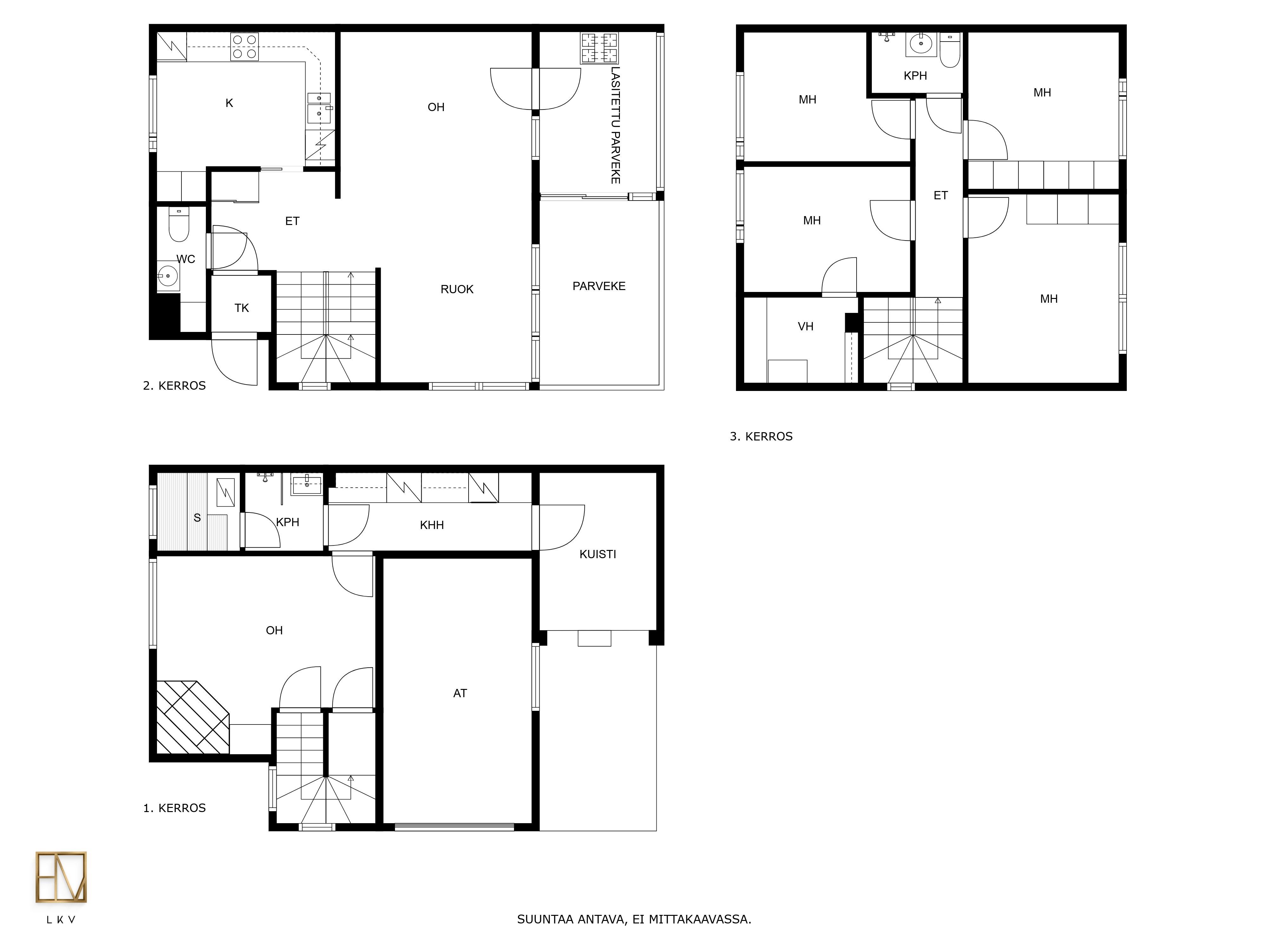
Kolmeen tasoon toteutettu pohjaratkaisu jakaa kodin toiminnot selkeästi. Sisääntulokerroksessa keittiö, olohuone ja ruokailutila muodostavat kodin oleskelutilat. Olohuoneesta on kulku etelä/länsi
suuntaiselle parvekkeelle, joka on osittain lasitettu. Tästä kerroksesta löytyy myös yksi wc. Yläkerran neljä makuuhuonetta mahdollistavat puitteet niin perheelle kuin etätyötä tekevälle pariskunnalle. Yläkerrassa on hyvin säilytystilaa sekä suihkulla varustettu kylpyhuone. Kodin kellarikerros on pyhitetty mm. rentoutumiseen. Takkahuone soveltuu hienosti vaikkapa vierashuoneeksi sekä saunan jälkeiseen oleskeluun. Saunaosaston yhteydessä on myös kodinhoitohuone, josta on kulku ulos.
Tämän kodin ehdottomana bonuksena on lämmin AUTOTALLI, joka tarjoaa loistavat tilat niin säilytykseen kuin harrastavan perheen tarpeille. Autotallin eteen mahtuu hyvin kaksi autoa. Kesäpäivistä kelpaa nauttia isolla parvekkeella tai takapihan terassilla. Suojainen takapiha ja leikkimökki sopivat hienosti myös perheen pienimmille! Rauhallinen kotikatu on vähäisesti liikennöity.
Huikkaan suosio perustuu asuinalueen rauhallisuuteen sekä arjen tärkeimpien palveluiden läheisyyteen. Kävelymatkan päässä sijaitsee mm. Kalevan palvelut, Tays, koulut sekä päiväkodit. Aluella on myös hyvät ulkoilureitit sekä Kaupin läheisyys. Tulevaisuudessa naapuriin nousee mm. Hakametsän Sport Campus, mikä lisää alueen arvostusta entisestään.
Lämpimästi tervetuloa tutustumaan! Sovi sinun perheellesi sopiva esittelyaika!
Lisätiedot ja esittelyt:
Anna Saravo, Herrainmäki LKV
p. 044 0500659
anna.saravo@herrainmaki.
@annasaravolkv
Kohdetta myy

33100 Tamperetoimisto@herrainmaki.fi040 678 7516
Esittely
Perustiedot
Kallioisenkatu 6
33530 Tampere
Muissa tiloissa on ilmoitettu lämpimän autotallin pinta-ala n. 15,50 m².
Pinta-aloja ei ole tarkistusmitattu ja ne saattavat olla ilmoitettua suurempia tai pienempiä. Asunnon hinta ei ole pinta-alaperusteinen.
Hinta ja kustannukset
Laskettu velattomasta myyntihinnasta.
Hoitovastike 150,00 € / kk
Lisätiedot
Ilmansuunta: etelä, länsi
Sähkökiuasv. 2007 saunan uudistus.
(Kourullecom Oy); viemärien puhdistus ja tarkastus, keittiön hajulukon vaihto (Akvatek Oy)
2024 sisäportaiden päällystys ja maalaus (StepFix Oy), autotallin oven nostomekanismin
korjaus ja kaukosäätimen vaihto (Turner Ovipalvelu Oy)
2023 ilmalämpöpumpun huolto (LämpöYkkönen Oy), piipun hatun asennus (Tampereen
Nuohous ja Ilmastointi Oy)
2022 sadevesikourujen puhdistus ja tarkastus (Roima Team Osk)
2021 olohuoneen parketin asennus (Rain Päll Tmi), keittiön hana (Näsin Vesijohtoliike Oy)
2020 ilmanvaihtojärjestelmän puhdistus (Ilmasi – Teuvan Rakennuspalvelu Oy)
2019 ilmalämpöpumpun huolto (LämpöYkkönen Oy)
2018 ulkoportaiden korjaus (J.S. Lehtinen), paneelikattojen maalaus (Remontointi Rainer
Vilén Oy)
2017 keittiöremontti (Elega Oy)
2014 pihakiveyksen saneeraus (Tmi Sunkris)
2013 ilmanvaihtojärjestelmän puhdistus ja mittaus (RepAir-ilmastointi Oy)
2009 alakerran wc:n uudistus (Kaakeliasennus Koivisto, Esa Lehtonen Rakennustyö, Kalevan
sähkö Oy, Putkiasennus J Saarinen)
2007 saunan ja pesuhuoneen uudistus, keittiön ja eteisen lattian laatoitus + lattialämmitys
(Tmi Kim Tallberg, Tmi Sähkö Tane, Putkiasennus Seppälä Ky)
2006 kodinhoitohuoneen uudistus (Novart Oy)
2004 parvekkeen laajennus (Mansen timpurit Oy), pihakiveyksen asennus (Maanrakennus
Pekka Niemelä, Muuraus ja laatoitus Tuomo Järvinen)
--
1993 rakennuksen lopputarkastus ja siihen liittyvät työt:
ulkoportaiden kaiteet, ullakkotilojen tuloilmanoton parannus.
Asunnon tilat ja materiaalit
Varusteet: astianpesukone, liesituuletin / hormi
Seinien pintamateriaali: maalattu, osalaatoitus
Lattian pintamateriaali: laatta
Keittiön tasot: kivi
Liesi: keraaminen
Seinien pintamateriaali: tapetti
Lattian pintamateriaali: parketti
Makuuhuoneiden määrä: 4
Varusteet: lattialämmitys, suihku
Seinien pintamateriaali: kaakeli
Lattian pintamateriaali: laatta
2. kerroksen wc:n varustus: suihku, allaskaappi, peilikaappi, wc-istuin, bideesuihku, lattialämmitys
WC-tilojen määrä: 2
- Kodinhoitohuoneen uudistus v. 2006 (Novart Oy).
- Eteisen ja tuulikaapin lattia laatoitettu ja asennettu lattialämmitys v. 2007.
- Sisäportaiden päällystys ja maalaus v. 2024 (Step Fix Oy).
Varusteet: kaapistot, sälekaihtimet/rullaverhot, kiinteät valaisimet, lämminvesivaraaja, ilmalämpöpumppu
Katon pintamateriaali: Tiili
Taloyhtiö
- Tietoliikennejärjestelmä: Valokuitu
- Antennijärjestelmä
2030 Ikkunoiden kunnostus tai uusiminen v. 2030 mennessä
Kallioisenkatu 6 B, 335350 Tampere
olli.lehtovaara@gmail.com
p. 0400 682571
Muut lisätiedot
Asunnolle A kuuluu oma autotalli asunnon yhteydessä. Lisäksi autotallin eteen mahtuu kaksi autoa. (Autotallin kunnossapito vastuu A:lla)
Autokatospaikat ( 2 kpl) kuuluvat asunnolle B (myös autokatoksen kunnossapito vastuu B:llä)
Autotallit: 1
Autotalli. Pihaan mahtuu myös 1-2 autoa.