Paritalo
Tervetuloa Sysimiiluntielle paritalokotiin Lempäälän Vuorekseen! Tämä moderni rivitalo tarjoaa viihtyisää asumista mukavassa ympäristössä.
Asunnon pohjaratkaisu on suunniteltu huolellisesti, tarjoten toimivan ja avaran kodin. Varustelutaso on hyvä ja käytetyt materiaalit ovat laadukkaita.
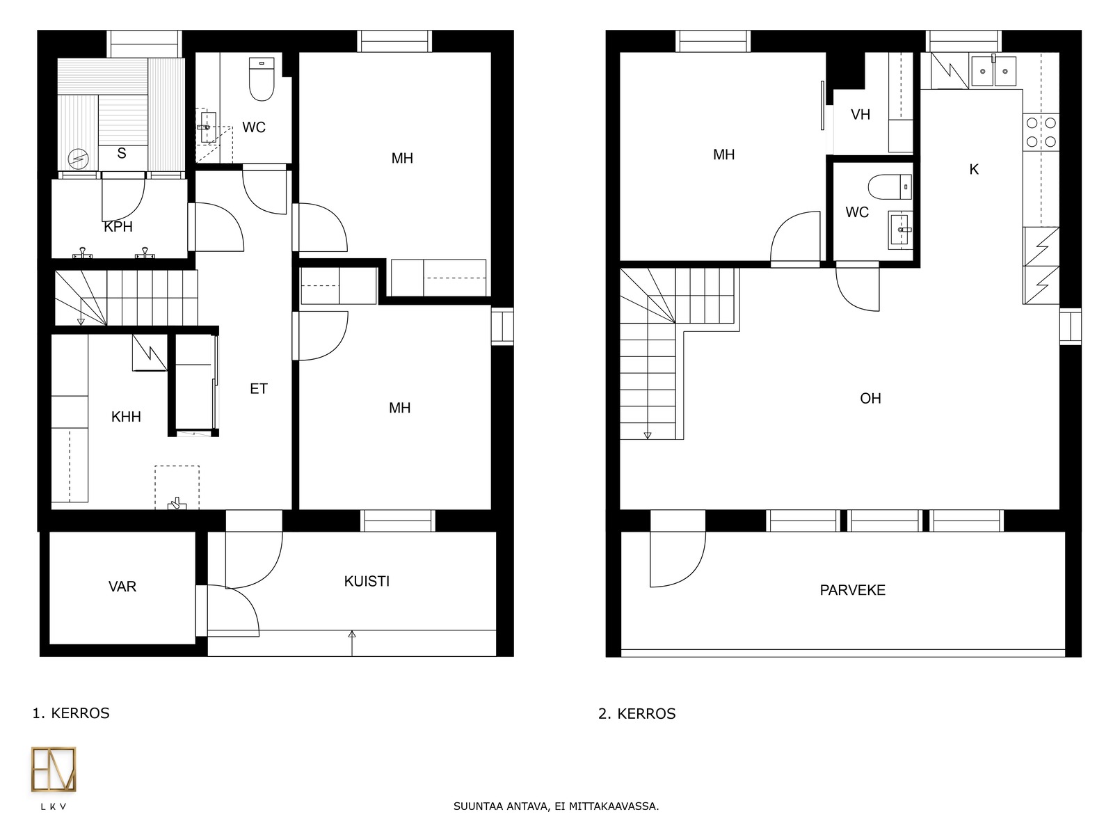
Astu sisään avaraan olohuoneeseen, joka yhdistyy sulavasti avokeittiöön. Olohuoneesta avautuu kulku isolle terassille, jossa voit nauttia auringosta ja rauhallisista hetkistä ystävien ja perheen kesken. Kauniisti suunniteltu ja valoisa tila tekee kodista viihtyisän ja kutsuvan. Kaksi kodin makuuhuoneista sijaitsee alakerrassa ja yksi yläkerrassa.
Tämän uuden rivitalon lämmitysmuotona on energiatehokas maalämpö, joka takaa erittäin kohtuulliset asumiskulut. Vesikiertoisen lattialämmityksen ansiosta lämpö jakautuu tasaisesti asuntoon. Asunnossa on huoneistokohtainen ilmanvaihtokone, jossa on energiatehokas lämmöntalteenotto.
Asunnolle kuuluu 2 pistokkeellista autopaikka, minkä lisäksi yhtiöön on tehty sähköauton lataukselle yksi kahden auton latausasema.
Rivitaloyhtiö sijaitsee rauhallisella alueella, jonka ympärillä avautuu kauniit puistoalueet. Luonnonläheinen sijainti tarjoaa mahdollisuuden nauttia rauhasta ja hiljaisuudesta. Yhtiö on virallisesti Lempäälän puolella, mutta postinumero ja -toimipaikka ovat Tampereella. Sijainti mahdollistaa kätevän ja saumattoman liikkumisen ja Vuoreksen palvelut löytyvät lähietäisyydeltä.
Näissä kodeissa uuden asunnon huolettomuus yhdistyy edullisiin asumiskustannuksiin ja huippusijaintiin.
Ota yhteyttä ja varaa oma esittelyaikasi!
Mika Jaskari
Asuntomyyjä
040 650 3377
mika.jaskari@herrainmaki.fi 
Kohdetta myy

33100 Tamperetoimisto@herrainmaki.fi040 678 7516
Esittely
Perustiedot
Sysimiiluntie 15
33870 Tampere
Hinta ja kustannukset
Laskettu velattomasta myyntihinnasta.
Hoitovastike 364,75 € / kk
Rahoitusvastike 837,25 € / kk
Lisätiedot
Asunnon tilat ja materiaalit
Varusteina induktiotaso, erillisuuni, liesikupu aktiivihiili-suodattimella, täyskorkea jääkaappi ja pakastin, astianpesukone sekä tilavaraus mikroaaltouunille.
Keittiökalusteet ja komerot ovat tehdasvalmisteisia vakio kalusteita. Keittiökalusteiden ja muiden komerokalusteiden ovet ovat mdf-ovia. Työtasot ovat laminaattipintaisia. Pesualtaat ovat komposiittia.
WC-tilojen määrä: 2
Katon pintamateriaali: Peltikate
Taloyhtiö
Leikki- ja oleskelupiha.
Asuntokohtaiset, lämmittämättömät varastot jokaisen huoneiston pääsisäänkäynnin vieressä.
Yhtiön yhteiskäytössä on ulkoiluvälinevarasto B-talon kellarissa.
Asunnon tontti
16 377,00 € / v
Muut lisätiedot
Autopistokepaikat: 19
Autopaikkamaksu: 10,00 € / kk
Huoneistolla kaksi autopaikkaa käytössä.













