Kerrostalo
AS OY MODENA, TAMPERE!
Vuonna 2020 paraatipaikalle Kaupin urheilupuiston kylkeen valmistunut hulppea yhtiö on palkitun rakennusliike Asuvan tuotantoa. Asuvan tuotannossa on tyypillistä todella korkea laatu, jossa pienetkin yksityiskohdat ovat mietitty sekä toteutettu palvelemaan asukkaan sujuvaa arkea.
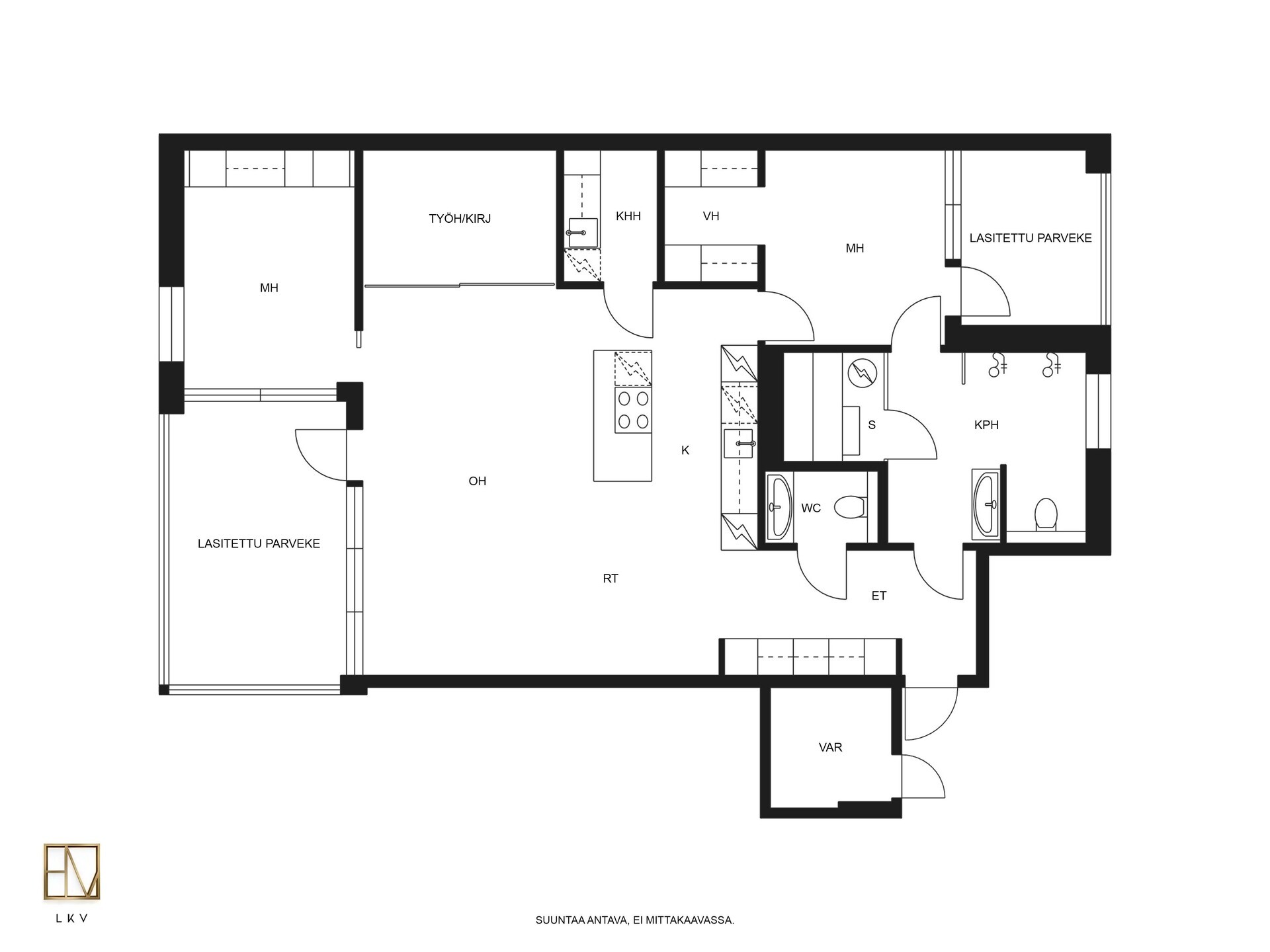
Myyntiini on avautunut tilava 111,50 m² huoneisto, jonka pohjaratkaisu sopii moneen eri elämäntilanteeseen ja on helposti muunneltavissa tarpeen mukaan. Huoneiston ehdottomana helmenä on keittiön ja olohuoneen muodostama iso yhteinen tila. Tilaa on isolle ruokapöydälle sekä illanistujaisille, unohtamatta arjen sujuvaa pyörittämistä lapsiperheessä.
Asunnossa on työhuone, joka on helposti muunneltavissa käyttötarpeen mukaan ja kaksi makuuhuonetta, joista päämakuuhuoneen yhteydessä on avoin vaatehuone sekä parveke. Kylpy- ja saunatilat ovat myös todella tyylikkäät. Tilan yhteydessä on asunnon toinen wc. Pyykkihuoltoa varten löytyy erillinen tilava ja todella käytännöllinen kodinhoitohuone. Asunnon kaksi lasitettua parveketta mahdollistavat keväisin varaslähdön kohti kesää ja toimivat lisähuoneena pitkälle syksyyn.
Kerrostalon yleistilat ovat myös täysin omalla tasollaan, sillä kellarikerroksesta löytyy mm. paikka suksien huollolle, polkupyörien pesulle. Tilassa on myös urheiluvälinevarasto sekä suihku. Eikä tässä kaikki, sillä aktiivisen asukkaan tarpeet ovat huomioitu myös säilytystiloissa. Huoneiston oven vieressä on oma iso varasto, jossa tilaa esimerkiksi golf-varusteille ja sähköpyörille. Yhtiön tiloissa on vielä tämän lisäksi huoneistokohtainen lämmin häkkivarasto.
Pysäköintipaikat ovat järjestetty naapurista löytyvästä P-Kaupin parkkihallista. Parkkihallissa on mahdollisuus sähköauton lataukseen.
Sijainti on täydellinen sinulle, joka haluat asua ison kaupungin keskustan sekä palveluiden välittömässä läheisyydessä, mutta kuitenkin luonnon vieressä ja etäällä ydinkeskustan hälinästä. Ympäristö on liikkuvan ja ulkoilevan ihmisen paratiisi, sillä Kaupin hiihtoladut sekä lenkkipolut lähtee lähes alaovelta. Kauppi Sport Center, jalkapallo- ja pesäpallokenttä ovat naapurissa. Isoista työnantajista TAYS on vieressä ja raitiotien lähin pysäkki n. 300 metrin päässä, joten myös liikkuminen julkisilla on vaivatonta. Näsijärven rantaan ja Kaupinojan saunalle kävelymatka kestää kymmenisen minuuttia.
As Oy Modena, Tampere muodostuu 18:sta isommasta asuinhuoneistosta. Lämmitysmuotona toimii maalämpö miellyttävällä vesikiertoisella lattialämmityksellä ja viilennyksellä. Yhtiö sijaitsee Tampereen kaupungin omistamalla vuokratontilla, jonka kulut sisältyvät hoitovastikkeeseen. Tontin vuokrasopimus on voimassa aina vuoteen 2079 saakka. Tarjolla laadukasta sekä huoletonta asumista vuosiksi eteenpäin!
Tämä kohde on sinulle, joka et halua tyytyä tavanomaiseen, vaan haluat enemmän!
Esittelyt ja lisätiedot:
Jussi Kuitunen
Kiinteistönvälittäjä, LKV, KiaT, yhteistyöyrittäjä
040 560 6654
jussi.kuitunen@herrainmaki.fi

Kohdetta myy

33100 Tamperejussi.kuitunen@herrainmaki.fi040 560 6654
Esittely
Perustiedot
Kuntokatu 11
33520 Tampere
Yhtiöjärjestyksen mukainen pinta-ala 111,50 m², muut tilat: varasto 4,50 m², lasitettu parveke 15 m², lasitettu parveke 4,50 m²
Hinta ja kustannukset
Laskettu velattomasta myyntihinnasta.
Hoitovastike 613,25 € / kk
Lisätiedot
Sähkökiuas
Asunnon tilat ja materiaalit
Seinien pintamateriaali: maalattu
Lattian pintamateriaali: parketti
Keittiön tasot: kivi
Liesi: induktio, erillisuuni
Lattian pintamateriaali: parketti
Lattian pintamateriaali: parketti
Makuuhuoneiden määrä: 3
Varusteet: lattialämmitys, wc-istuin, suihku, kiinteät valaisimet
Seinien pintamateriaali: kaakeli
Lattian pintamateriaali: laatta
Seinien pintamateriaali: kaakeli
Lattian pintamateriaali: laatta
WC-tilojen määrä: 1
Seinien pintamateriaali: maalattu
Lattian pintamateriaali: laatta
Eteisessä lattia: parketti, seinät maalattu. Varustus: kaapisto
Varusteet: sälekaihtimet/rullaverhot, kiinteät valaisimet
Katon pintamateriaali: Bitumikermi
Taloyhtiö
Parvekkeilla tupakointi kielletty (yhtiöjärjestyksen 19§) Lyhytaikainen vuokraustoiminta kielletty (yhtiöjärjestyksen 18§)
Yhtiökokous 18.3.2025 valtuutti hallituksen keräämään 1-2 kk ylimääräisen hoitovastikkeen, mikäli taloyhtiön taloudellinen tilanne sitä vaatii.
Ilmastoinnin nuohous ja säätö
Maalämpöjärjestelmän ylläpitokorjaukset
Mari Mattinen
010 271 6308 , maria.mattinen@isannointijarvinen.fi
Teiskontie 25 E, 33500 Tampere
Pirkanmaan Plushuolto Oy
66 304 € / v








































