Kerrostalo
Vapautumassa tyylikäs ja harmoninen tilava kerrostalokoti Tampereen Pyynikintorilta. Tämä lähes 100 m² asunto on kaksitasoinen tarjoten tiloilleen monia käyttötarkoituksia.
Vuonna 1928 valmistunut asunto huokuu ajalleen tyypillisiä arvokkaita piirteitä, kuten korkea huonekorkeus, leveät ikkunapenkit ja seinään upotetut valurautapatterit. Taloyhtiön näyttävä porrasaula mukailee samaa arkkitehtuuria.
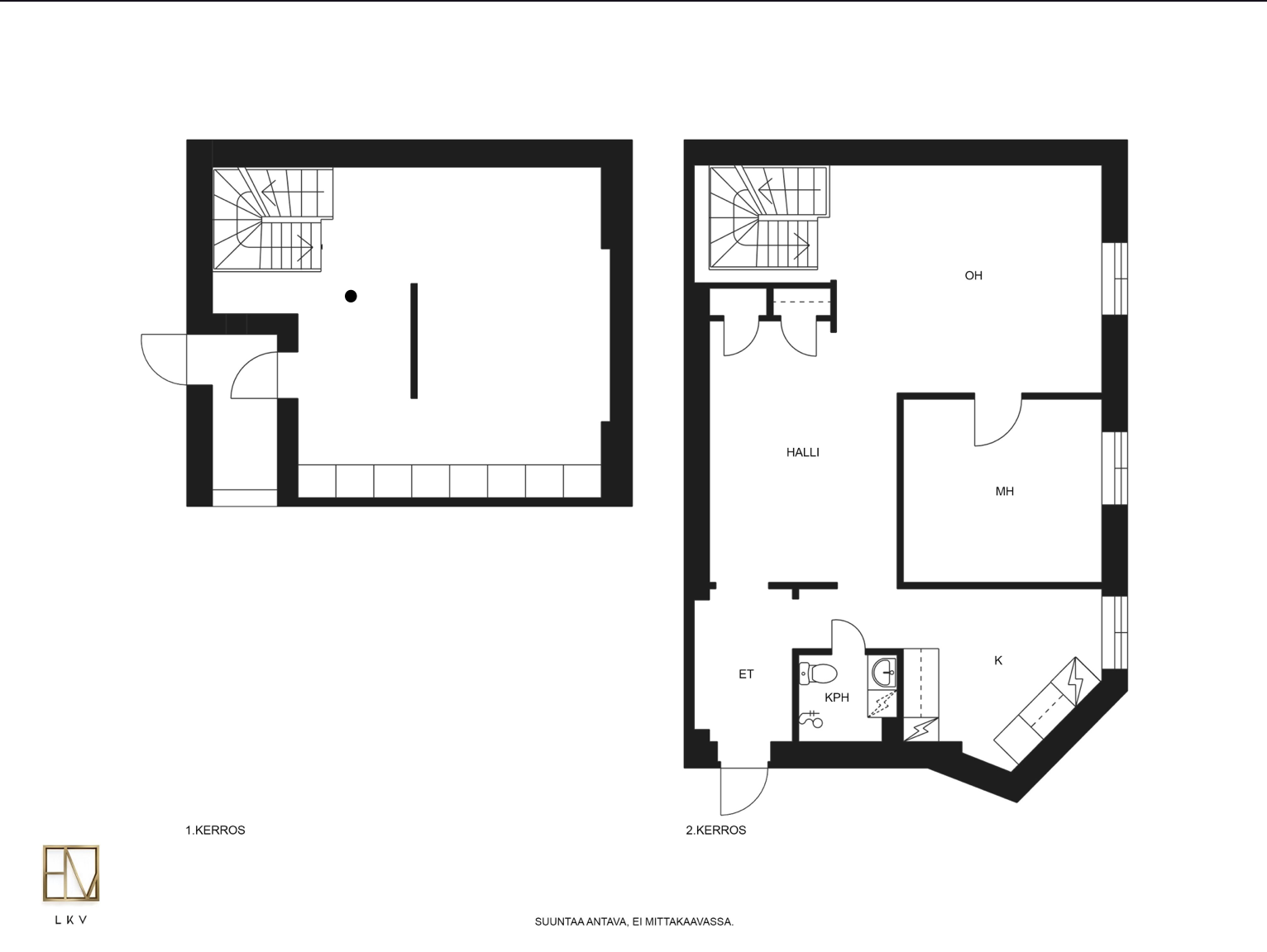
Hieno holvikaari johdattelee kohti vanhaa eteishallia, joka on laajenettu toimivaksi ruokailutilaksi isollekin ruokailuryhmälle. Viereisessä keittiössä on mukavasti kaappitilaa sekä tilaa myös ruokapöydälle. Olohuone on luonnollisena jatkeena ruokailutilalle. Yläkerrassa on myös yksi makuuhuone ja rappujen yllä käytännöllinen parvi. Myös vuonna 2022 remontoitu tyylikäs kylpyhuone sijaitsee sisääntulokerroksessa.
Alakerrassa on suuri huone, jossa on sähköistetty tilanjakajaseinä. Huoneessa on reilusti kaappitilaa. Erikoisuutena on myös suora käynti taloyhtiön yhteisiin tiloihin, kuten sauna- ja pyykinpesutilaan.
Vuonna 1928 tiilestä rakennettu Asunto Oy Pyynikintori 3 on mahtavalla sijainnilla Pyynikintorin länsilaidalla. Arvoa huokuvasta talosta on pidetty hyvää huolta vuosien varrella ja tehtyjen remonttien lista on pitkä. Asukkaiden on mahdollista pysäköidä Heinätorilla asukaspysäköinnissä.
Pyynikin ulkoilureitit alkavat lähes ovelta ja bussi- ja ratikkapysäkit kulkevat aivan vieressä. Sijaintia on vaikea hehkuttaa liikaa. Pyynikin harjun kupeessa asuminen yhdistää luonnon ja kaupungin läheisyyden mitä parhaimmalla tavalla. 
Kohdetta myy

33100 Tamperejesse.niittymaki@herrainmaki.fi+358 40 678 7516
Esittely
Perustiedot
Pyynikintori 3
33230 Tampere
Yhtiöjärjestyksen mukaan pinta-ala koostuu kahdesta osasta, 2 h+k (67m2) ja aputila (30m2).
Vapautuu sopimuksen mukaan
Hinta ja kustannukset
Laskettu velattomasta myyntihinnasta.
Hoitovastike 717,80 € / kk
Lainaosuussuoritukset rahastoidaan yhtiön kirjanpidossa ja
rahoitusvastikkeet tuloutetaan.
Yhtiökokouskutsun mukaan hoitovastike tulee olemaan 1.7,.2026 alkaen 8,00 €/m².
Lisätiedot
- Ruokailutilan ja makuuhuoneen muutostyö 2017
- Pesuhuoneremontti 8/2022
Lämmönjakotapa: vesikiertoinen patterilämmitys
Vesikeskuslämmitys
Isännöitsijäntodistuksen mukaan taloyhtiössä on yhteisantennijärjestelmä. (Antennijärjestelmä, joka muuttaa signaalin kaapeliverkolle sopivaksi).
Asunnon tilat ja materiaalit
Pintamateriaalit: - olouhuone, makuuhuone, keittö: pyökkiparketti
- ruokailutila, eteinen: valkovahattu tammiparketti
- alakerta: saarniparketti
Puustellin koivuviilukaapistot (myös rungot), kivitasot, integroidut kylmäkalusteet ja astianpesukone, rosteriuuni, rosterimikroaaltouuni, keraaminen liesi ja huuva. Pyökkiparketti
Lattialämmitys, pyyhekuivain (vesikiertoinen), sadesuihku ja suihkuseinät, paikka pesukoneelle, seinäwc, allaskaappi ja malja-allas.
Katon pintamateriaali: Peltikate
Taloyhtiö
- 1989 Vesikaton uusiminen
- 1990 Sähköpääkeskuksen huoneistojen syöttöjen uusiminen
- 1998 Vesi- ja viemäriputkien uusiminen
- 2000 Julkisivu-/ikkunaremontti
- 2002 Portaikon kunnostus
- 2005 Autohallin ja pihaluiskan kunnostus
- 2008 Vesikatonvauriokorjaus ja huoltomaalaus
- 2009 Ikkunoiden huoltomaalaus
- 2001-2012 Vesikaton vauriokorjaus ja ullakon eristetilan korjaus
- 2013-2014 Julkisivun pienkorjaukset
- 2015 Huoneistokatselmus
- 2016 Lukituksen uusiminen
- 2016 Vesikaton osamaalaus tehtyjen korjausten osalta
- 2016 Liikehuoneistojen kunnostusta
- 2016 IV-kanavien nuohous ja säätötoimenpiteet
- 2017 Ikkunoiden huoltomaalaus
- 2018 Ulko-ovien maalaus
- 2018 Lämmönvaihtimen uusiminen
- 2019 Energiahankeselvitystä naapuriyhtiöiden kanssa
- 2020 Ikkunoiden huoltomaalauksen toteutussuunnittelu
- 2021 ikkunoiden, tuuletusparvekkeiden oviaukkojen ja sisäpihan ulko-oven huoltomaalaus
- 2022 Antenni- ja puhelinverkon mittaus
- 2022 Käyttövesiputkiston kuntotutkimus
- 2023 Patteriventtiilien säätö
- 2024 Patteriverkoston ilmaus
- 2024 Rakennushistoriallinen selvitys
- 2024 ARK-piirustukset sähköiseen muotoon
- 2024 Antenni- ja tietoliikenneverkon remontin suunnittelu alkoi
- 2025 Palovaroittimien asennus huoneistoihin
- 2025 Kellarikerroksen asbestikartoitus
- 2025 Hormikartoitus
- 2026 Linjasäätöventtiileiden uusiminen ja tasapainotus
- 2026 Huoneistojen märkätilakartoitus
2026 Kellarikerroksen palokatkojen rakentaminen
2026 Kellaritilan vanhojen sähköjohdotusten uusiminen
2026 Sulanapitokaapelien uusiminen
2026 Julkisivun rappauskorjaukset
2027 Sisäverkon (antenni/tietoliikenne) suunnittelu ja toteutus
2028 Hissin kunnostus
2028 Kellaritilojen ja pyöräsuojan huoltomaalaus
2028 Pesula-/kuivaustilan kunnostus
2028 Sisäpihan parannus (kivimuuri/B-portaan puoleinen sokkeli/jätekatos)
Sarvijaakonkatu 5 b A, (4. kerros) 33540 Tampere
Isännöitsijä: Heini Asikainen puh. 0440475013
Kiinteistöpalvelu Siiki Oy
Itsenäisyydenkatu 3 C 176
33100 Tampere
Rakennuksen laskennallinen energiatehokkuuden vertailuluku eli E-luku on 171.
112197.24 €/v
Tampereen kaupunki / kaavoitus
Frenckellinaukio 2 B, 33100 Tampere https://kartat.tampere.fi/oskari/
























