Rivitalo
Vapautumassa siistikuntoinen yksitasoinen rivitalokolmio Tampereen Haukiluomasta. Tämän asunnon varusteluun kuuluu niin etelänsuuntainen terassi, oma sauna kuin autopaikka.
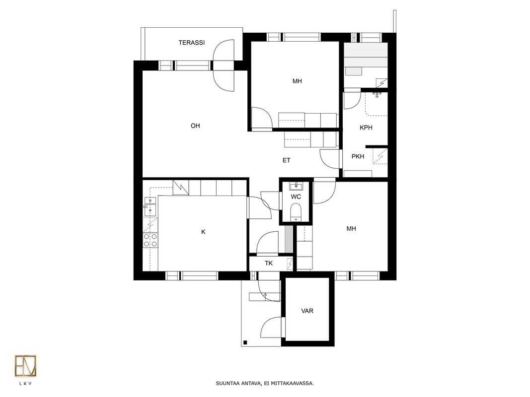
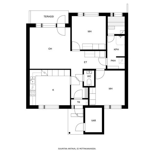
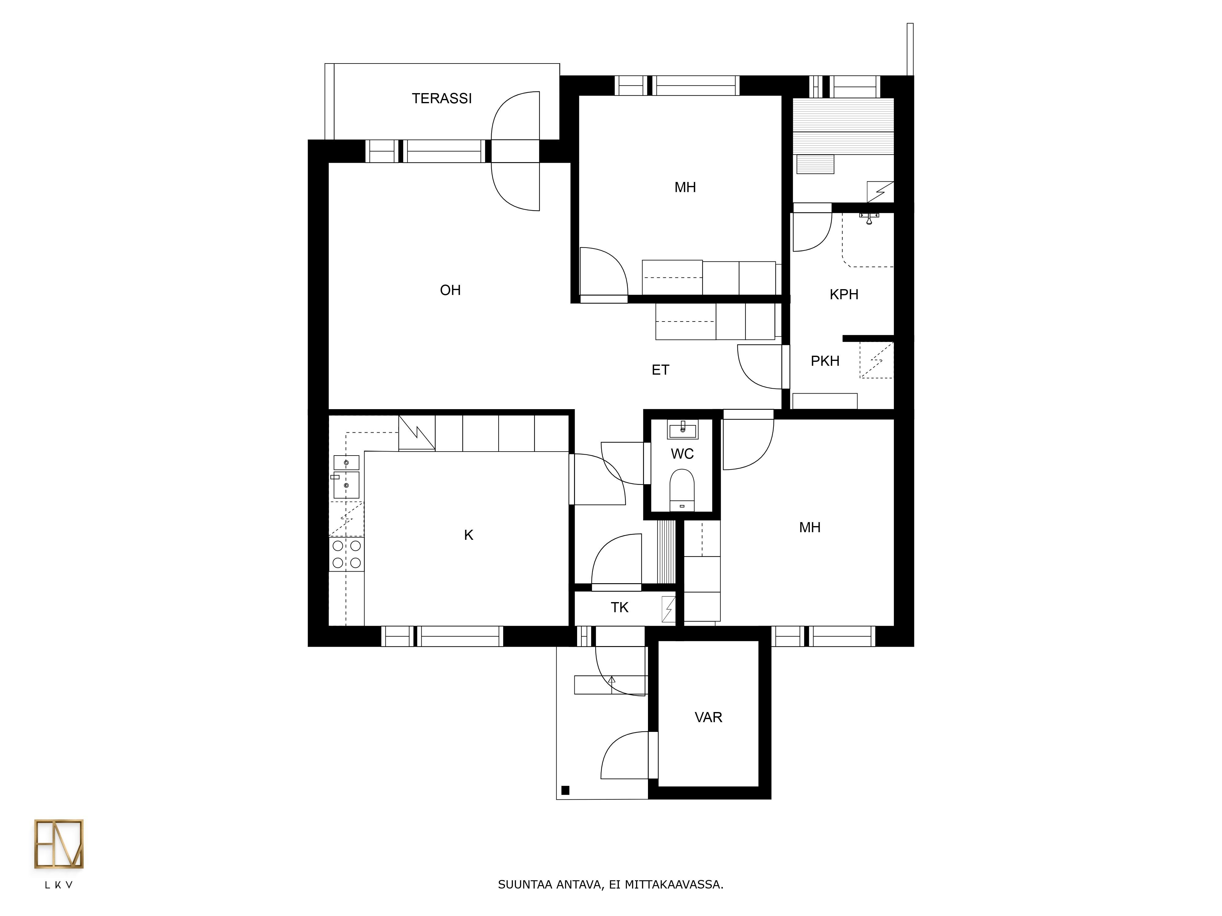
Valoisasta olohuoneesta käynti aurinkoiselle ja suojaisalle takapihalle. Keittiössä on mukavasti tilaa myös ruokapöydälle. Makuuhuoneet ovat käytännöllisesti hieman erillään toisistaan. Erillinen wc. Kylpyhuoneen yhteydessä myös tilaa kodinhoidolle. Oma sauna. Osakkaalla oma ulkovarasto ja oikeus yhteen autopaikkaan, mahdollisuus toiseenkin.
Asunto Oy Lehtikatu on hyvin hoidettu taloyhtiö, jossa on suoritettu tasaisesti huolto- ja korjaustoimenpiteitä. Yhtiössä on sovittu, että osakas vastaa kylpy-, sauna- ja wc-tilojen rakenteista. Sijainti on mainio yhdistelmä palveluiden läheisyyttä ja luonnon läheisyyttä. Tesoman ja Lielahden palveluiden ääreen on muutaman kilometrin matka, ja lähikauppa on muutaman minuutin kävelymatkan päässä. Lenkkipolut ja hiihtoladut vievät täältä helpolla esimerkiksi Teivoon asti. Koulut ja päiväkodit ovat lyhyen kävelymatkan päässä. Julkiset liikkuvat tiuhaan läheisellä Myllypuronkadulla.
Varaa oma yksityisesittelysi!
Jesse Niittymäki
LKV, DI, Yrittäjä
jesse.niittymaki@herrainmaki.fi
0406787516
IG @niittymakilkv
Kohdetta myy

33100 Tamperejesse.niittymaki@herrainmaki.fi+358 40 678 7516
Esittely
Perustiedot
Lehtikatu 1
33340 Tampere
Hinta ja kustannukset
Laskettu velattomasta myyntihinnasta.
Hoitovastike 489,00 € / kk
Autosähköpaikka 10 e/kk
Lisätiedot
Omassa saunassa sähkökiuas ja ikkuna ulos.
Lämmönjakotapa: vesikiertoinen patterilämmitys
Asunnon tilat ja materiaalit
Puu/tiili
Pintamateriaalit: Asuintiloissa laminaattilattiat.
Uuni/hella, astianpesukone, liesituuletin ja jääkaappipakastin.
Katon pintamateriaali: Tiilikate
Taloyhtiö
2024 huippuimurit uusittiin, ulko-ovien huoltokierros
2022 ulko-ovien ja lukkojen uusinta
2020 a-talon päädyn kaivuu, vesieristysten asentaminen ja sepelitäyttö
2019 väliaitojen maalaus, räystäskourujen ja alastuloputkien uusinta
2018 a- talon toinen lape korjattiin
2017 piha-alueen pelastusteiden sorastus
2017 tiilikaton puhdistus ja maalaus
2013 sokkelit korjattu ja maalattu
2012 iv-hormit nuohottu ja liesikuvut uusittu
2007 puiset väliaidat uusittu
2006 talojen puiset osat maalattu
2006 välikaton palokatkot tehty
2005 lämmönvaihdin uusittu ja patteritermostaatit vaihdettu
2002 aluskatteet korjattu
- Kasvillisuuden poisto seinustoilta
- Julkisivun puuosin huoltomaalaus
- Huippuimureiden kytkentärasioista puuttuu läpivientitiivisteitä
- Ikkunoiden uusiminen
- Terassien ovien uusiminen
- Huoneistojen paristokäyttöisten palovaroittimien uusiminen
- Salaojajärjestelmän uusiminen, sekä katto- ja pintavesien ohjauksen
parantaminen
- Sora-alueiden lanaus tarpeen mukaan
- Sokkeleiden vedeneristyksen asentaminen sekä kunnostaminen
- Lämmönjakokeskuksen uusiminen
- Rakennustenväliset lämpö- ja vesijohdot uusitaan
- Ikääntyneiden pesuhuoneiden saneeraus, 4 pesuhuonetta (huom. osakkaiden vastuulla)
- Viemäreiden kuvaus
Sami Rautiainen
033416190
1801 €/v
Tampereen kaupunki