Rivitalo
Rivitalokolmio Lempäälästä!
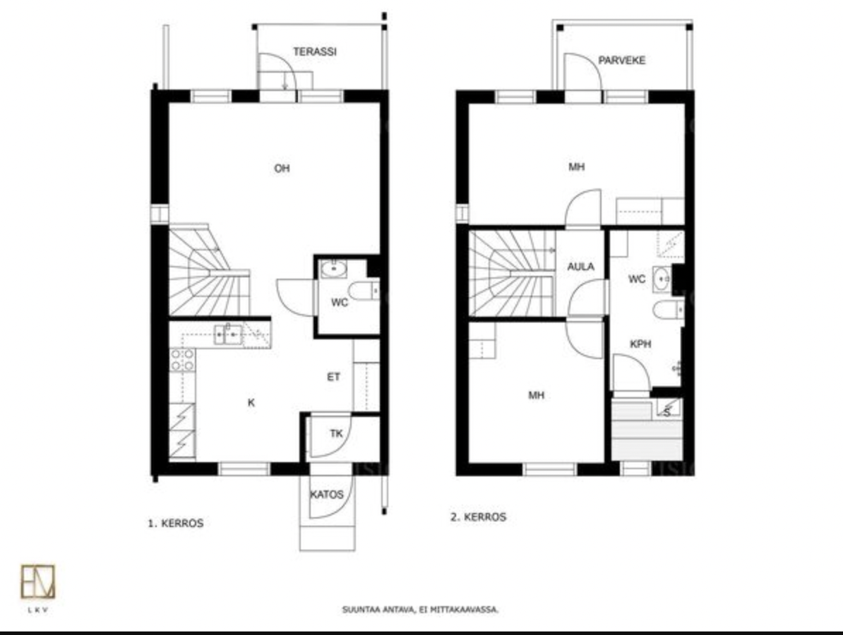
Tässä viihtyisässä kaksitasoisessa kodissa on kaikkiaan 71,50 m² pinta-alaa. Alakerrassa on tilava olohuone, josta kulku takapihan terassille. Lisäksi upea 2021 remontoitu keittiö, jossa mukavasti tilaa ruokailuryhmälle.
Yläkerrassa on kaksi makuuhuonetta, joista suuremman yhteydestä kulku parvekkeelle. Lisäksi ylhäällä on pesuhuone kera wc-istuimen ja saunan. Molemmissa kerroksissa on siis wc, joka tuo helpotusta etenkin lapsiperheiden arkeen.
Asunto Oy Lempäälän Kuhapolku on yhtiö, joka koostuu 23 asuinhuoneistosta. Yhtiö sijaitsee omalla tontilla ja sen lämmitysmuotona on maakaasu. Vuonna 2010 valmistunut yhtiö sijaitsee rauhallisella paikalla.
Lisätiedot ja myynti:
Janne Suoniemi, LKV, LVV
0400766507
janne.suoniemi@herrainmaki.fi 
Kohdetta myy

33100 Tamperejanne.suoniemi@herrainmaki.fi0400 766 507
Esittely
Perustiedot
Kuhapolku 2
37550 Lempäälä
Hinta ja kustannukset
Laskettu velattomasta myyntihinnasta.
Hoitovastike 449,74 € / kk
Lisätiedot
Sähkökiuas
Asunnon tilat ja materiaalit
Varusteet: mikroaaltouuni, astianpesukone
Seinien pintamateriaali: maalattu
Lattian pintamateriaali: laminaatti
Liesi: induktio
Seinien pintamateriaali: maalattu, tapetti
Lattian pintamateriaali: laminaatti
Seinien pintamateriaali: maalattu
Lattian pintamateriaali: muovi
Makuuhuoneiden määrä: 2
Seinien pintamateriaali: kaakeli, muovi
Lattian pintamateriaali: muovi
Lattian pintamateriaali: muovi
Katon pintamateriaali: Huopakate
Taloyhtiö
Yhtiö on osaomistuskohde, jonka osakepääomasta 15 % omistavat huoneistojen asukkaat ja loput 85 % Pirkanmaan AVO-Asunnot Oy.
2023 Katon pesu.
2024 Katon kuntokartoitus.
2025 Julkisivujen huoltomaalaus.
Kotikatu Oy
Muut lisätiedot
8 katospaikkaa, 14 pistokepaikkaa ja 9 sähkötöntä paikkaa.


























