Rivitalo
Nyt on sijainti kohdillaan!
Tämä hyvin pidetty ja käytännöllinen kaksikerroksinen rivitalokoti sijaitsee erinomaisella paikalla, rauhallisella ja halutulla alueella Tampereen Uudessakylässä!
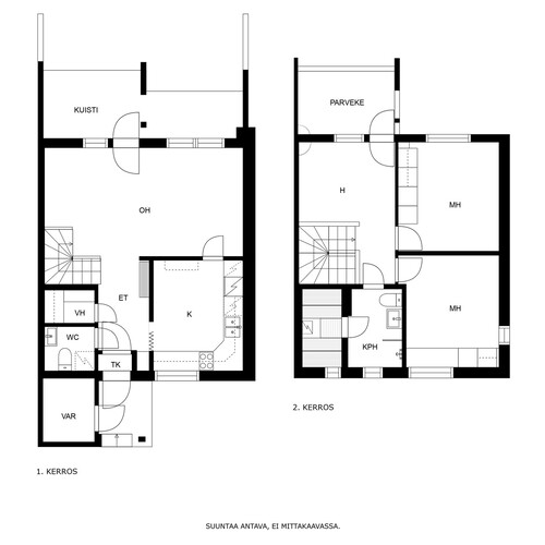
Asunnon asuinpinta-ala on 85,50 neliömetriä, ja se tarjoaa väljät ja toimivat tilat asumiseen sekä arkeen.
Sisääntulokerroksessa sijaitsevat erillinen keittiö ja valoisa, avara olohuone, josta on kulku suojaisalle ja katetulle terassille, sekä vehreälle takapihalle.
Yläkerrasta löytyvät kaksi makuuhuonetta sekä monikäyttöinen aulatila, jota on käytetty myös makuuhuoneena ja joka muuntuu tarvittaessa kolmanneksi makuutilaksi. Tästä huoneesta on käynti omalle parvekkeelle. Yläkerran viimeistelee vuonna 2022 tyylikkäästi ja hyvällä maulla remontoitu kylpyhuone, sekä oma sauna tuomaan arkeen ripauksen luksusta.
Asunnossa on wc molemmissa kerroksissa. Säilytystilaa on runsaasti, sillä käytössäsi on sekä vaatehuone että ulkovarasto. Kokonaisuus on käytännöllinen ja hyvin suunniteltu.
Asunto Oy Kinnarinkatu 5 on vuonna 1983 valmistunut kuuden asunnon rivitaloyhtiö. Yhtiö sijaitsee omalla tontilla, ja lämmitysmuotona toimii huoleton kaukolämpö vesikiertoisella patterilämmityksellä. Yhtiöstä on pidetty hyvää huolta ja täällä asuminen on sujuvaa.
Sijainti on erinomainen. Läheltä löytyvät muun muassa Kalevan Prisma, Hakametsän jäähalli, TAYS ja Kaupin monipuoliset ulkoilumaastot. Kulkuyhteydet keskustaan ja muualle kaupunkiin ovat loistavat niin omalla autolla kuin julkisillakin.
Tässä kodissa yhdistyvät käytännöllisyys, viihtyisyys ja loistava sijainti. Tervetuloa tutustumaan ja ihastumaan!
Lisätiedot ja esittelyt:
Janne Suoniemi
Kiinteistönvälittäjä, LKV
0400766507
janne.suoniemi@herrainmaki.fi 
Kohdetta myy

33100 Tamperejanne.suoniemi@herrainmaki.fi0400 766 507
Esittely
Perustiedot
Kinnarinkatu 5
33530 Tampere
Hinta ja kustannukset
Laskettu velattomasta myyntihinnasta.
Hoitovastike 410,40 € / kk
Lisätiedot
Sähkökiuas
Keittiön kaapistot uusittu 2012.
Asunnon tilat ja materiaalit
Varusteet: astianpesukone
Seinien pintamateriaali: maalattu
Lattian pintamateriaali: parketti
Liesi: keraaminen
Lattian pintamateriaali: parketti
Lattian pintamateriaali: laminaatti
Makuuhuoneiden määrä: 2
Varusteet: wc-istuin, suihku
Seinien pintamateriaali: kaakeli
Lattian pintamateriaali: laatta
Seinien pintamateriaali: kaakeli
Lattian pintamateriaali: laatta
Yläkerran avoin "aulatila", jossa lattiamateriaalina laminaatti, seinät maalattu. Tilasta kulku parvekkeelle.
Katon pintamateriaali: Tiilikate
Taloyhtiö
KaapeliTV.
Taloyhtiölaajakaista 25 M/10M.
Kosteidentilojen kosteusvaurioiden korjaus 1997.
Kosteidentilojen kuntokartoitus 1997.
Ulkovaipan maalaus 2002.
Lämmönvaihdin 2005.
Ovien lukitus 2007.
IV- kojeiden nuohous 2009.
Terassiovet uusittu 2010.
Vesikate, rännit, syöksyt ja yläpohjan lisälämmöneristys 2012.
Raja-aidan uusiminen 2014.
Terassiovet uusittu, yläkerta 2015.
Moottoriventtiili, lämmönjako 2015.
Väli-aitojen kunnostusta / uusimista 2016.
Valokatteiden uusinta 2017.
Puiden kaato 2017.
Putkistojen kuntotutkimus 2018.
Pihaportti 2018.
Ulko-ovien+teknisentilan oven uusiminen 2019.
Postilaatikoiden uusiminen 2020.
Kevyt kuntokartoitus 2021.
Piha-aita 2021.
Energiatodistus 2023.
Palovaroittimien uusinta 2025.
Putkistojen seurantatutkimus 2023-2025.
IV-koneiden nuohous ja säätö 2025.
Sähköjärjestelmien tarkastus (käynnissä).
KotiKatu Messukylä hoitaa lumityöt.
Muut lisätiedot
Autopaikkamaksu: 20,00 € / kk


























